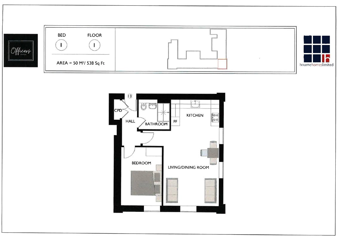
1 BEDROOM Flat / Apartment
£265,000
Asking Price
Deepcut, Surrey, GU16
Leasehold
Apartment Department
- 1 bed
- 1 bath
- 1 receptions
Full description
ONE BEDROOM APARTMENT – Located in Over Three Acres of Landscaped Grounds
BEAUTIFULLY PRESENTED ONE BEDROOM APARTMENT SET IN OVER THREE ACRES OF LANDSCAPED GROUNDS.
Nestled in the heart of Deepcut, The Officers Park is a truly distinctive residential development, offering 33 beautifully appointed one and two bedroom apartments within the magnificent former headquarters of the Princess Royal Barracks, all set within over three acres of private, landscaped grounds.
Originally constructed in 1937, the Officers Mess was once the historic heart of military training and the Royal Logistic Corps. Now thoughtfully restored by Bourne Homes Ltd, the building retains its striking revivalist architecture, featuring grand proportions and finely detailed facades while being reimagined for modern living.
Thoughtfully restored to honour its storied past, this exceptional development preserves many original features maintaining its historic charm and architectural significance. At the same time, each apartment has been carefully reimagined for contemporary living, with open-plan layouts and bright, airy interiors designed to maximise the stunning views across landscaped grounds.
Many homes feature private outdoor spaces such as gardens or terraces, with one plot offering a private balcony. Selected properties also include a garage, while every apartment is equipped with an EV charging point reflecting Bourne Homes commitment to sustainability and future ready living.
Located in the heart of the emerging Mindenhurst village, The Officers Park Collection enjoys a vibrant and growing community, surrounded by established woodland, landscaped gardens, and a network of walking and cycling trails. Residents can enjoy direct access to the Basingstoke Canal, Deepcut village, and a range of local amenities – making this development a rare opportunity to enjoy the charm of historic architecture with the comfort and convenience of a modern lifestyle.
*Please note photos are of the development and may not be the exact plot.
Property Summary
One Double Bedroom
Contemporary Kitchen with Integrated Appliances
Elegant Bathroom Suite with Quality Fittings and Modern Tiling
Efficient Heating – Gas Combi or Electric (Plot Dependent)
Superfast Full Fibre Broadband Connectivity
EV Charging to All Units
Garage to Selected Plots - Parking
EPC: B 81
Over Three Acres of Landscaped Grounds
10-year Build Zone Warranty
Council Tax: TBC
FIND OUT HOW MUCH YOU CAN BORROW
Stamp duty calculator
Mortgage calculator











