1 BEDROOM Flat / Apartment
£275,000
Asking Price
Deepcut, Surrey, GU16
Leasehold
Apartment Department
- 1 bed
- 1 bath
- 1 receptions
Full description
ONE BEDROOM APARTMENT – Open Plan Living Perfect for Entertaining or Relaxing
**OPEN DAY SATURDAY 15TH NOVEMBER 10.00AM – 12.00PM** *By appointment only.
STUNNING FIRST FLOOR ONE BEDROOM APARTMENT WITH VIEWS THAT OVERLOOK THE LANDSCAPED GARDENS.
Step into a unique blend of heritage, craftsmanship, and contemporary comfort at The Officers Park Collection, a prestigious residential development nestled in the heart of Deepcut. Set within over three acres of private, landscaped grounds, this exclusive collection comprises 33 one and two bedroom apartments housed within the magnificent former Officers Mess of the Princess Royal Barracks.
Originally built in 1937, the Officers Mess once served as the historic centre of military life and home to the Royal Logistic Corps. Today, this landmark building has been meticulously restored by Bourne Homes Ltd, blending the building?s striking revivalist architecture and grand period features with the very best in modern design.
Inside, each apartment has been thoughtfully reconfigured with open plan layouts, light filled interiors, and contemporary finishes that celebrate the building?s character while offering the ease of modern living. Many homes also enjoy private outdoor space, from terraces and gardens to one special apartment with its own private balcony.
*Please note photos are of the development and may not be the exact property.
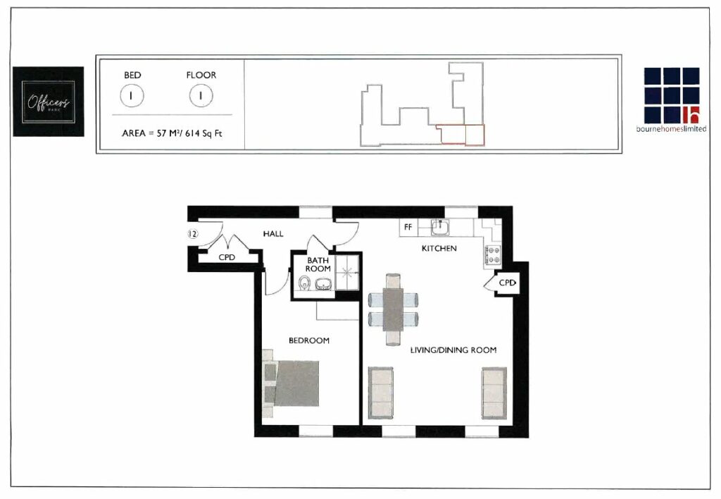
Disclaimer: The floorplan and measurements provided are for illustrative purposes only and should not be relied upon for accuracy.
Property Summary
One Double Bedroom
Contemporary Kitchen with Integrated Appliances
Elegant Bathroom Suite with Quality Fittings and Modern Tiling
Efficient Heating – Gas Combi or Electric (Plot Dependent)
Superfast Full Fibre Broadband Connectivity
EV Charging to All Units
Garage to Selected Plots - Parking
EPC: C 74
Council Tax Band: TBC
Over Three Acres of Landscaped Grounds
10 Year Build Zone Warranty
FIND OUT HOW MUCH YOU CAN BORROW
Stamp duty calculator
Mortgage calculator












