1 BEDROOM Flat / Apartment
£185,000
Guide Price
Highland Road, Aldershot, Hampshire, GU12
Leasehold
Apartment Department
- 1 bed
- 1 bath
- 1 receptions
Full description
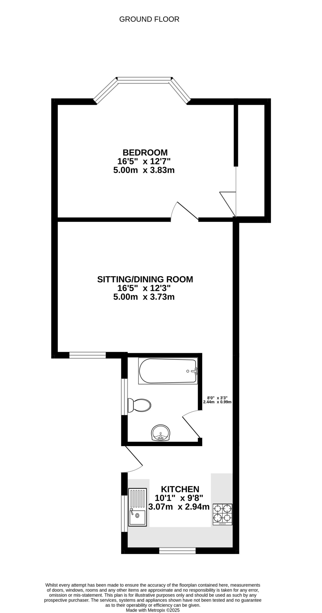
ONE DOUBLE BEDROOM GROUND FLOOR MAISONETTE Driveway Parking and Rear Garden
Welcoming to the market is this charming one bedroom, ground floor maisonette, offered with no onward chain, driveway parking, and a rear garden. The property comprises access from the side of the building into the kitchen, which leads through to either the family bathroom or the living/dining room. To the front of the property is a double bedroom with built-in storage. The property also boasts a 975 year lease and a share of the freehold.
Property Summary
One Double Bedroom
Maisonette
No Onward Chain
Rear Garden
Parking
Share of Freehold
975-Year Lease
EPC: D (68)
Council Tax Band: B
FIND OUT HOW MUCH YOU CAN BORROW
Stamp duty calculator
Mortgage calculator









