1 BEDROOM Flat / Apartment
£185,000
Asking Price
London Road, Old Basing, Basingstoke, Hampshire, RG24
Leasehold
Apartment Department
- 1 bed
- 1 bath
- 1 receptions
Full description
ONE BEDROOM APARTMENT – Located Close to Local Amenities
Situated on the edge of Old Basing and overlooking the river Lyde is this collection of 17 high specification apartments built by local developer 4DS Construction.
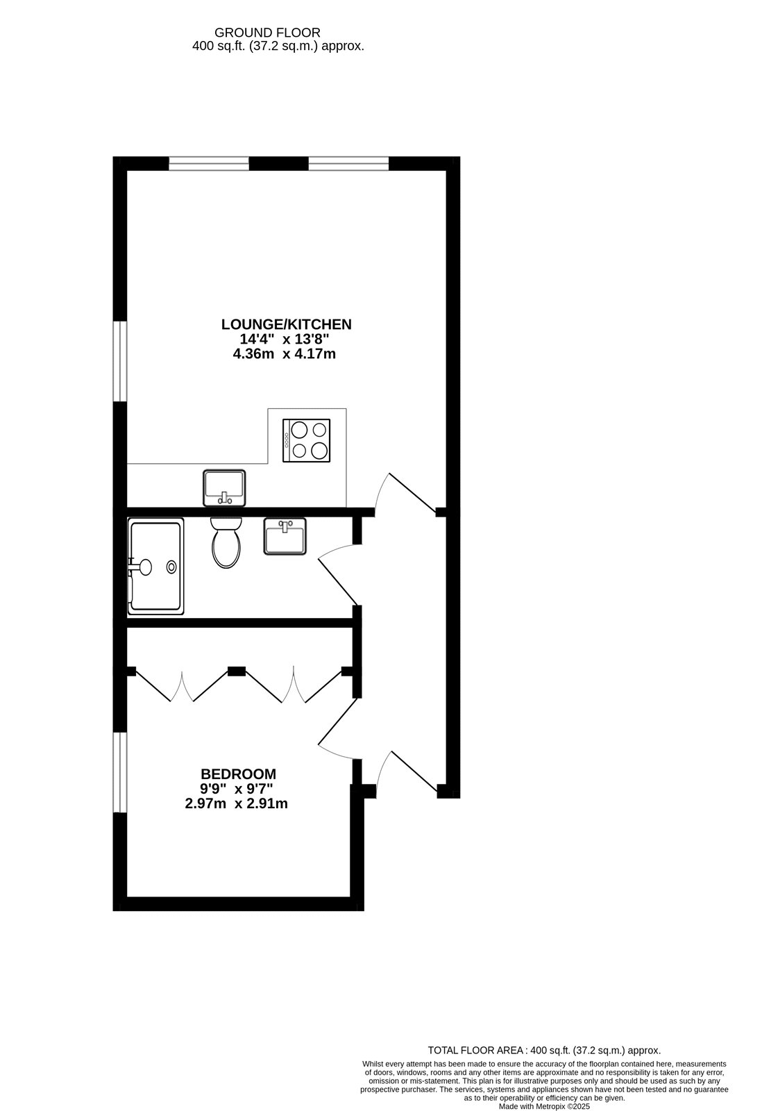
This apartment has an open plan living/dining room with a fitted kitchen with integrated NEFF appliances to include hide and slide oven, four ring induction hob, fridge/freezer, dishwasher and washer/dryer, principal bedroom and family shower room.
Offering excellent transport links with the M3 and Basingstoke railway station (services to London in 50 minutes) being under a ten minute drive away. The apartments are a short walk from Old Basing village centre and its bakery, coffee shop, Co-Op store, health centre/pharmacy and post office.
Festival Place offers shops, bars and restaurants and the town has extensive recreational facilities including sports centres, cinemas, museums, theatres and ten pin bowling.
Plots 1, 3, 4, 6, 7 8, 13, 14, 15 all have solar which provide 1.5 kwph.
*Please note photos are of the development and may not be the exact property.
Disclaimer: The floorplan and measurements provided are for illustrative purposes only and should not be relied upon for accuracy.
Property Summary
One Bedroom Apartment
Share of Freehold
Integrated Appliances
Bathroom Complete with Touch Sensitive Mirror Light
Quality Internal Doors with Brushed Metal Furniture
One Allocated Parking Space
On Site Electric Charging
EPC: TBC
Council Tax Band: TBC
FIND OUT HOW MUCH YOU CAN BORROW
Stamp duty calculator
Mortgage calculator







