1 BEDROOM Maisonette
£190,000
Guide Price
Morval Close, Farnborough, Hampshire, GU14
Leasehold
Apartment Department
- 1 bed
- 1 bath
- 1 receptions
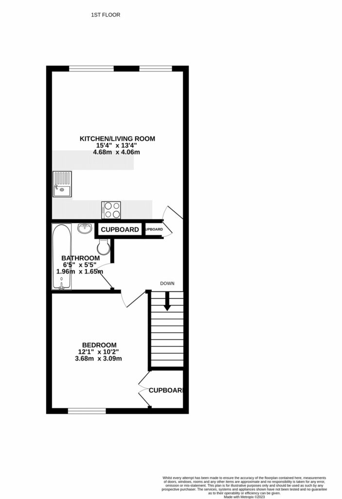
Full description
ONE BEDROOM FIRST FLOOR MAISONETTE Being Sold With No Onward Chain!
Offered to the market with no onward chain is this one-bedroom maisonette. Located in a popular area, the property provides easy access to local amenities, parks, major road links, and is approximately one mile from Farnborough?s main train station.
Internally, the maisonette features an open-plan kitchen/living room, a double bedroom with built-in storage, and a three-piece bathroom suite. Additionally, residents benefit from allocated parking.
Please note, this property is suitable for cash buyers only. Viewings are highly recommended to fully appreciate what this home has to offer.
Property Summary
One Double Bedroom
First Floor Maisonette
Living/Dining Room
Residents and Visitors Parking
Small Popular Development
No Onward Chain
Estimated Rental Price : £1,000 pcm
EPC : D (62)
Council Tax Band : B
FIND OUT HOW MUCH YOU CAN BORROW
Stamp duty calculator
Mortgage calculator








