1 BEDROOM Flat / Apartment
£210,000
Asking Price
Redshank Crescent, Chineham, Basingstoke, Hampshire, RG24
Leasehold
Apartment Department
- 1 bed
- 1 bath
- 1 receptions
Full description
SPACIOUS MODERN APARTMENT IN A GREAT AREA. No Onward Chain
Located in the highly sought after Vyne Park development, this immaculate one bedroom apartment offers modern living in a peaceful, green setting, unusual for a new build area. Surrounded by detached homes and set back from the road, it enjoys a pleasant outlook over trees, allocated parking, and ample visitor spaces.
Inside, the spacious dual aspect living room is filled with natural light. The modern kitchen features integrated appliances, and the stylish bathroom is well maintained. A standout feature is the generous storage, including two good sized cupboards in the hallway and built-in wardrobes in the bedroom, rare for a property of this type.
Ideal for first time buyers or investors, this home is offered with no onward chain, and we?d love to show you around.
Property Summary
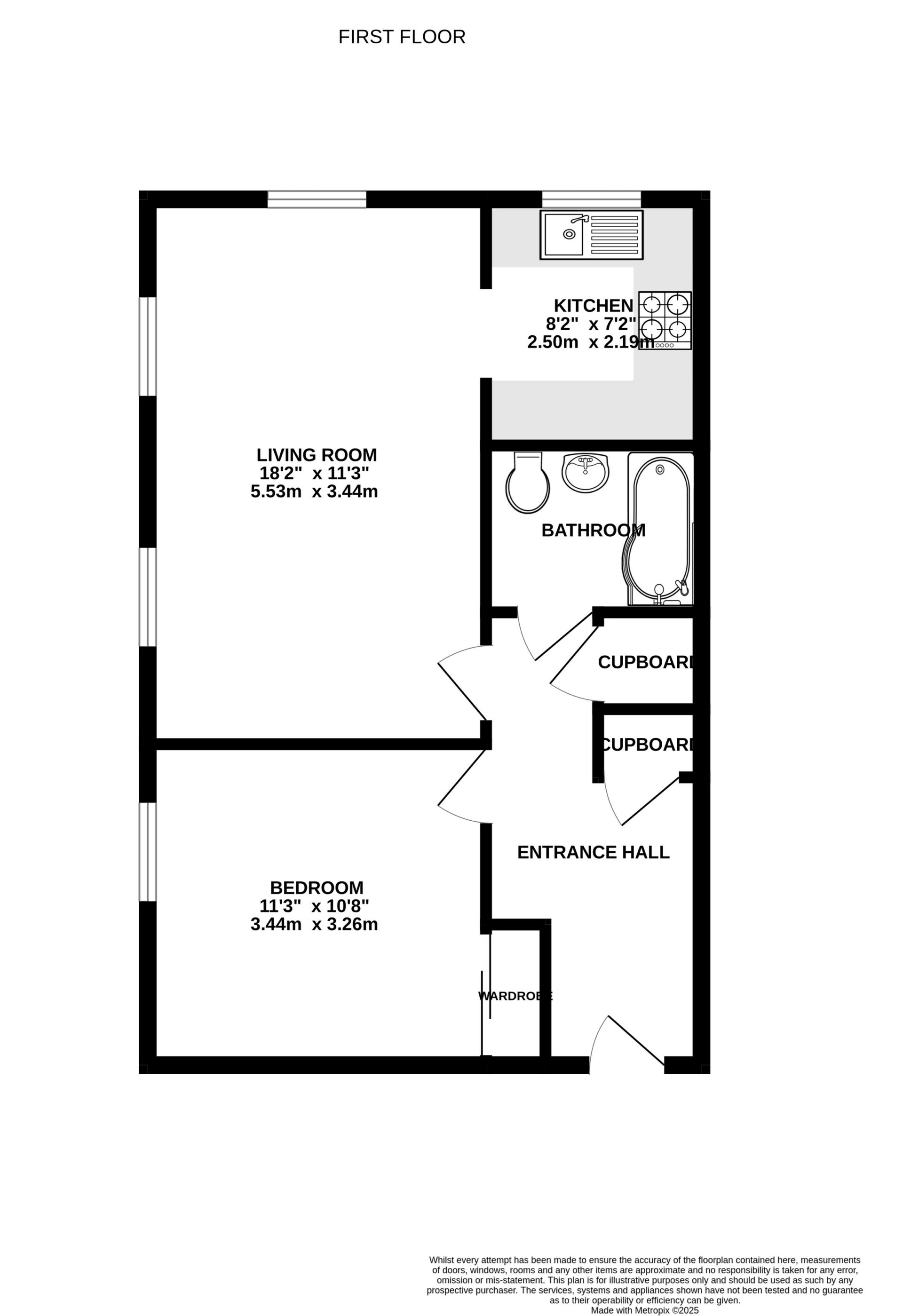
One Double Bedroom with Built-In Wardrobes
Spacious Entrance Hallway with Loft Hatch
18'2" Living Room
Modern Kitchen with Built-In Appliances
Allocated Parking and Bike Storage
No Onward Chain
Generous Storage
EPC: B (84)
Council Tax Band: B
FIND OUT HOW MUCH YOU CAN BORROW
Stamp duty calculator
Mortgage calculator







