2 BEDROOM Terraced House
£325,000
Asking Price
Arlott Drive, Basingstoke, Hampshire, RG21
Freehold
- 2 bed
- 1 bath
- 1 receptions
Full description
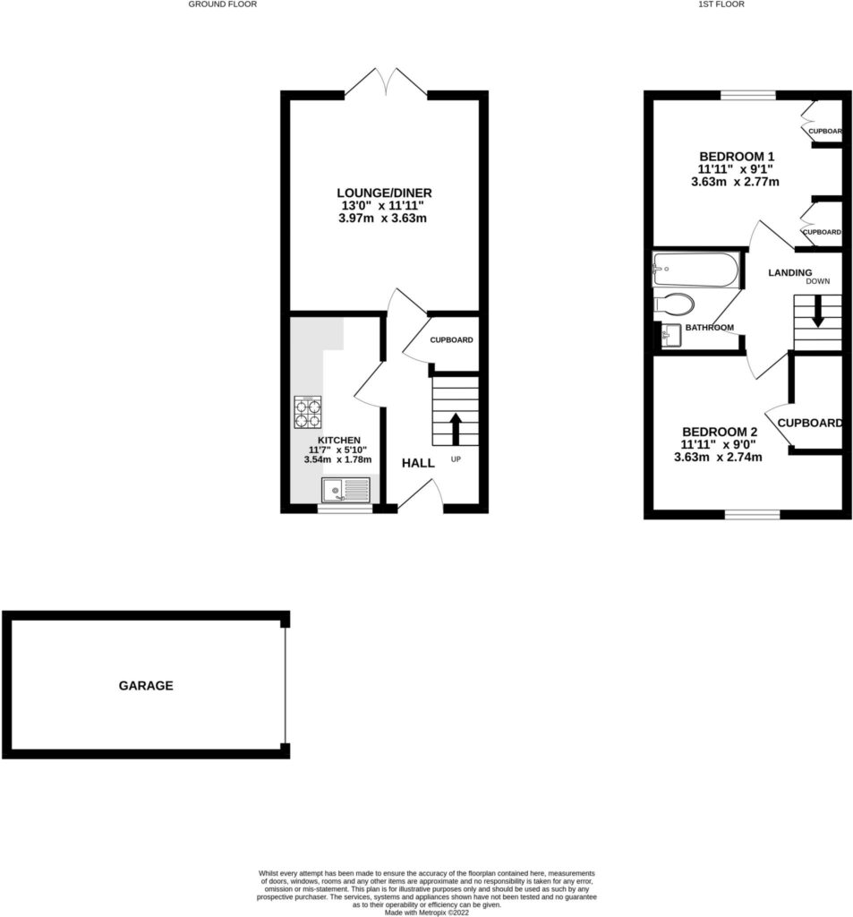
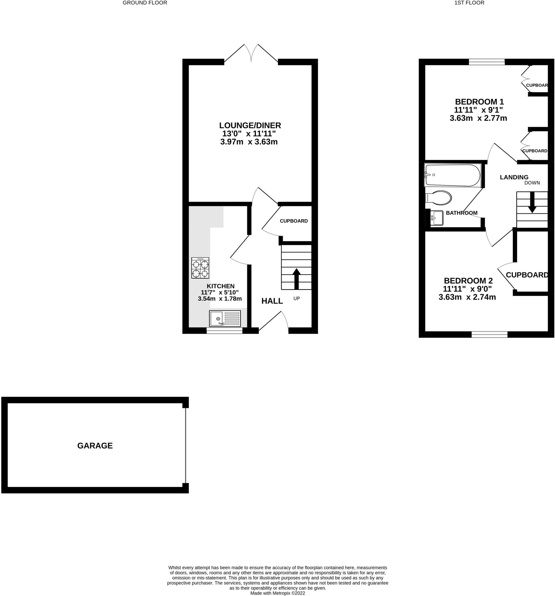
TWO DOUBLE BEDROOM HOUSE with Garage
Bridges offer to the market this well presented two double bedroom terraced house located in the popular South View area which is within easy reach of the town centre and railway station. The ground floor comprises of an entrance hall, storage cupboard under the stairs, modern fitted kitchen with built-in dishwasher, integrated oven and gas hob, the lounge looks out to the garden and has French doors to the patio. The first floor features two double bedrooms and a modern three piece family bathroom. The property suits both first time buyers and investment landlords.
Property Summary
Two Double Bedrooms
Terraced House
Garage
Close to Town
Modern Bathroom
Lounge
Estimated Rental Figure: £1300pcm
EPC: 70 (C)
Council Tax Band: C
Modern Fitted Kitchen
Garden
FIND OUT HOW MUCH YOU CAN BORROW
Stamp duty calculator
Mortgage calculator









