2 BEDROOM Flat / Apartment
£237,500
Guide Price
Beverley House, Wallis Square, Farnborough, GU14
Leasehold
Apartment Department
- 2 bed
- 2 bath
- 1 receptions
Full description
PERFECT FOR INVESTORS! This Two Double Bedroom Apartment Is Close To The Station And Being Sold With No Onward Chain
Bridges are delighted to offer this two double bedroom apartment with no onward chain, situated in the heart of Farnborough town centre and close to Farnborough train station which has links to London Waterloo in under 40 minutes. This property is well sized as it is bigger than the average apartment in the development. Internally the accommodation comprises of an open plan kitchen/living room, two double bedrooms with the main bedroom benefiting from an en suite shower room and built in wardrobes, and lastly a three piece family bathroom suite. This property would be perfect for first time buyers or an investor looking for a great investment opportunity.
Property Summary
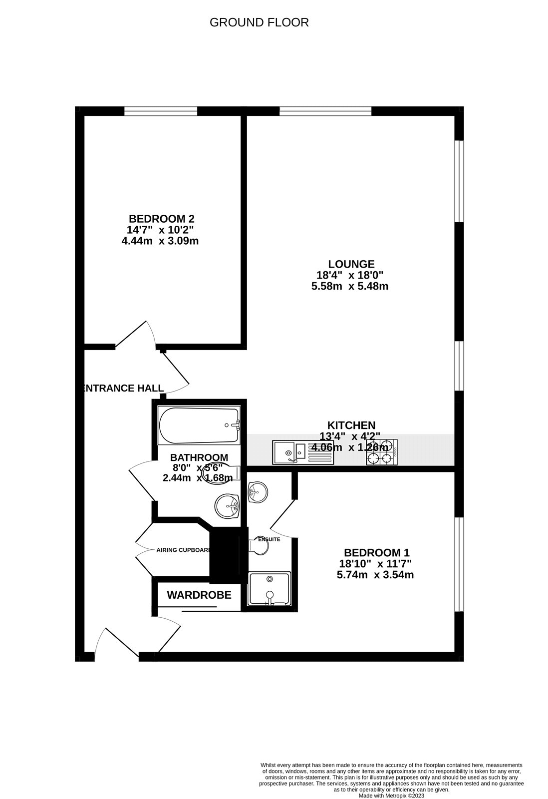
Two Bedroom Ground Floor Apartment
Spacious Lounge/Diner
Family Bathroom and En Suite
Modern Fitted Kitchen
Fitted Appliances
Easy Access to the Town and Train Station
Estimated Rental Price: £1,400pcm
EPC: C (69)
Council Tax Band: C
FIND OUT HOW MUCH YOU CAN BORROW
Stamp duty calculator
Mortgage calculator






