2 BEDROOM Terraced House
£280,000
Asking Price
Caswell Close, Farnborough, Hampshire, GU14
Freehold
- 2 bed
- 1 bath
- 1 receptions
Full description
RENOVATION POTENTIAL Spacious Two Bedroom Mid Terraced Home
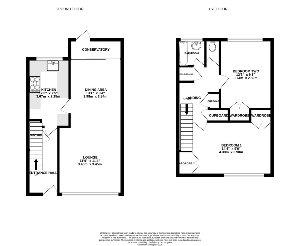
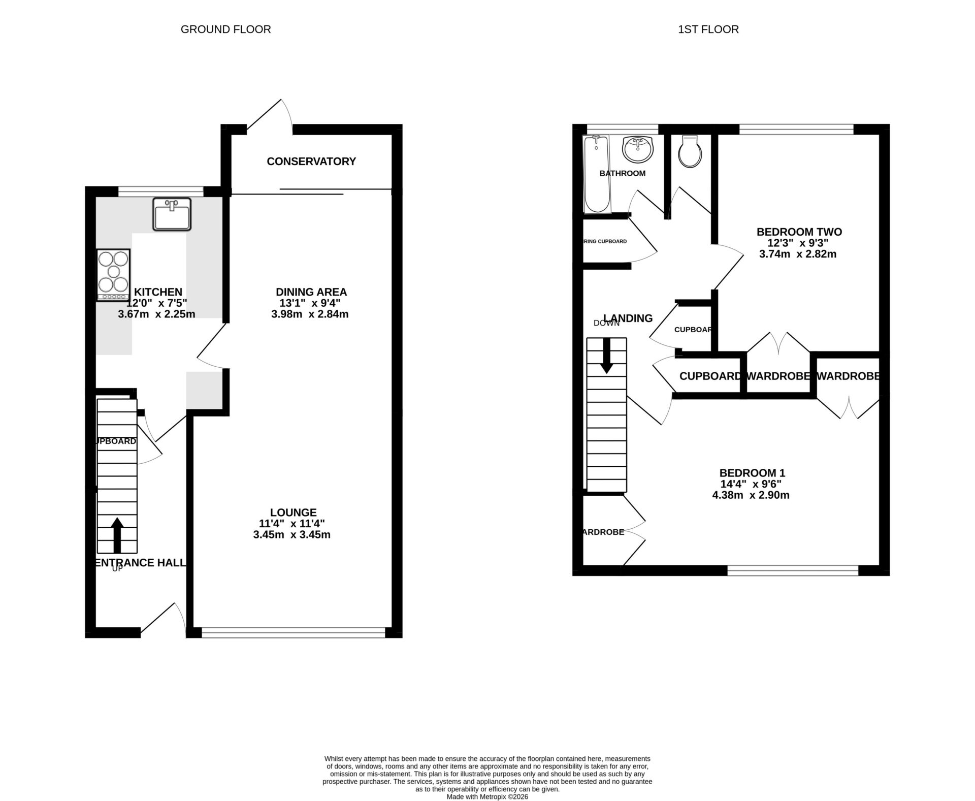
This spacious mid terraced family home is offered in good order and benefits from two bedrooms, a lounge/dining room, a fitted kitchen and parking via rear access.
Further benefits include fronting onto a child friendly, traffic free courtyard/square, with the convenience of direct access from Caswell Close to the rear of the property.
The property is conveniently located for local amenities, including local shops, a doctor’s surgery, and a local primary school. Nearby bus stops within walking distance provide regular services into Farnborough town centre. Farnborough Mainline Station is within easy reach, providing services to London Waterloo from 34 minutes.
Property Summary
Two Bedrooms
Lounge/Dining Room
Enclosed Rear Garden
Close to Local Amenities
Great Transport Links
No Onward Chain
Desired Location
EPC: TBC
Council Tax Band: B
FIND OUT HOW MUCH YOU CAN BORROW
Stamp duty calculator
Mortgage calculator









