2 BEDROOM Flat / Apartment
£370,000
Asking Price
Deepcut, Surrey, GU16
Leasehold
Apartment Department
- 2 bed
- 2 bath
- 1 receptions
Full description
TWO BEDROOM APARTMEMT – Situated in Over Three Acres of Landscaped Grounds
**PRE LAUNCH – NEW APARTMENT PLOT 26 SATURDAY 24TH JANUARY 10.00AM – 12.00PM** *By appointment only.
A STUNNING TWO BEDROOM GROUND FLOOR APARTMENT WITH GARAGE AND PARKING SPACE.
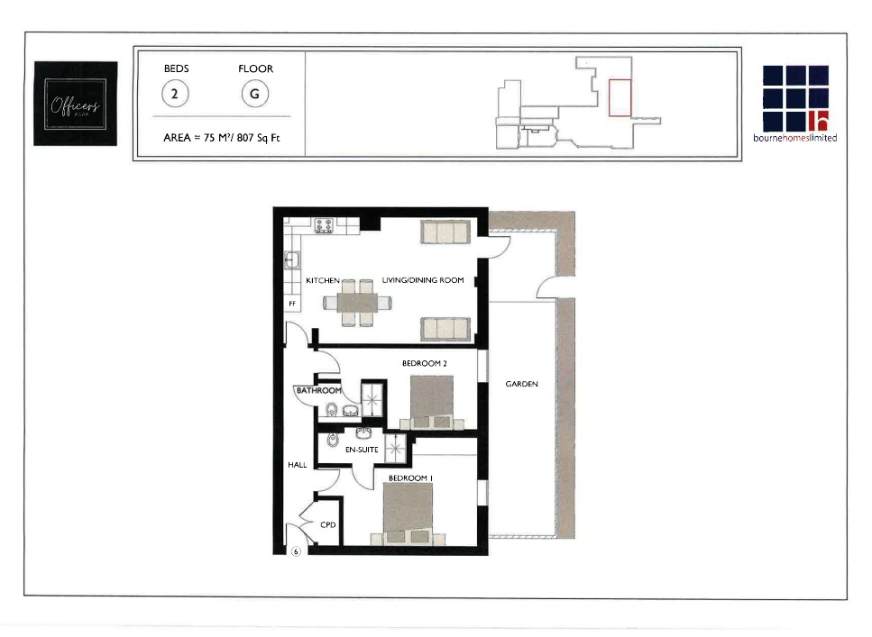
Welcome to this beautifully appointed two bedroom apartment, perfectly positioned on the first floor of the iconic Officers Park Collection. Featuring an en suite to the principal bedroom and a high specification bathroom, the property is flooded with natural light thanks to its striking feature windows.
Additional highlights include a private garage and one allocated parking space, complete with a dedicated EV charging point for modern convenience.
Set within the former headquarters of the Princess Royal Barracks in Deepcut, The Officers Park Collection is a truly unique residential development. Comprising 33 exquisite one and two bedroom apartments, this landmark building, originally constructed in 1937, has been thoughtfully restored.
Each apartment has been reimagined with open plan layouts and bright interiors to capture stunning views across more than three acres of private, landscaped grounds. Many homes benefit from private outdoor spaces such as terraces or gardens, with select plots featuring garages and one with a private balcony.
Every apartment is future ready, equipped with EV charging points and energy efficient features, underscoring Bourne Homes? commitment to sustainability.
Please note: Photos, CGI imagery, and videos are indicative of the development and may not depict the exact apartment.
Disclaimer: The floorplan and measurements provided are for illustrative purposes only and should not be relied upon for accuracy.
Property Summary
Two Double Bedrooms
Contemporary Kitchen with Integrated Appliances
Elegant Bathroom Suite with Quality Fittings and Modern Tiling
Efficient Heating – Gas Combi or Electric (Plot Dependent)
EV Charging to All Units
Garage to Selected Plots - Parking
Over Three Acres of Landscaped Grounds
EPC: C 77
Council Tax Band: TBC
10 Year Build Zone Warranty
FIND OUT HOW MUCH YOU CAN BORROW
Stamp duty calculator
Mortgage calculator










