2 BEDROOM Flat / Apartment
£300,000
Asking Price
Farnborough Road, Farnborough, Hampshire, GU14
Leasehold
Apartment Department
- 2 bed
- 1 bath
- 1 receptions
Full description
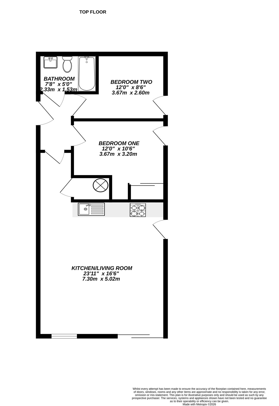
MODERN TWO BEDROOM APARTMENT No Onward Chain
Offered to the market with no onward chain is this modern two bedroom top floor apartment, built in 2019 and ideally positioned on a corner plot, benefiting from dual aspect windows, an abundance of natural light, and two secure underground parking spaces.
The apartment offers well planned accommodation comprising two bedrooms and a contemporary family bathroom. Conveniently located within close proximity to Farnborough Main train station, the property is ideally suited to commuters and represents an excellent opportunity for first time buyers, investors, or those seeking a low maintenance home.
Property Summary
Modern Two Bedroom Apartment
Top Floor Corner Plot
Dual Aspect Windows
Contemporary Bathroom
No Onward Chain
Close to Farnborough Station
Ideal for Buyers or Investors
EPC: B (83)
Council Tax Band: C
FIND OUT HOW MUCH YOU CAN BORROW
Stamp duty calculator
Mortgage calculator







