2 BEDROOM Terraced House
£385,000
Guide Price
Folly Lane North, Farnham, Surrey, GU9
Freehold
- 2 bed
- 2 bath
- 1 receptions
Full description
A BEAUTIFULLY APPOINTED PERIOD COTTAGE WITH AN ABUNDANCE OF CHARM! Located In a Peaceful Lane
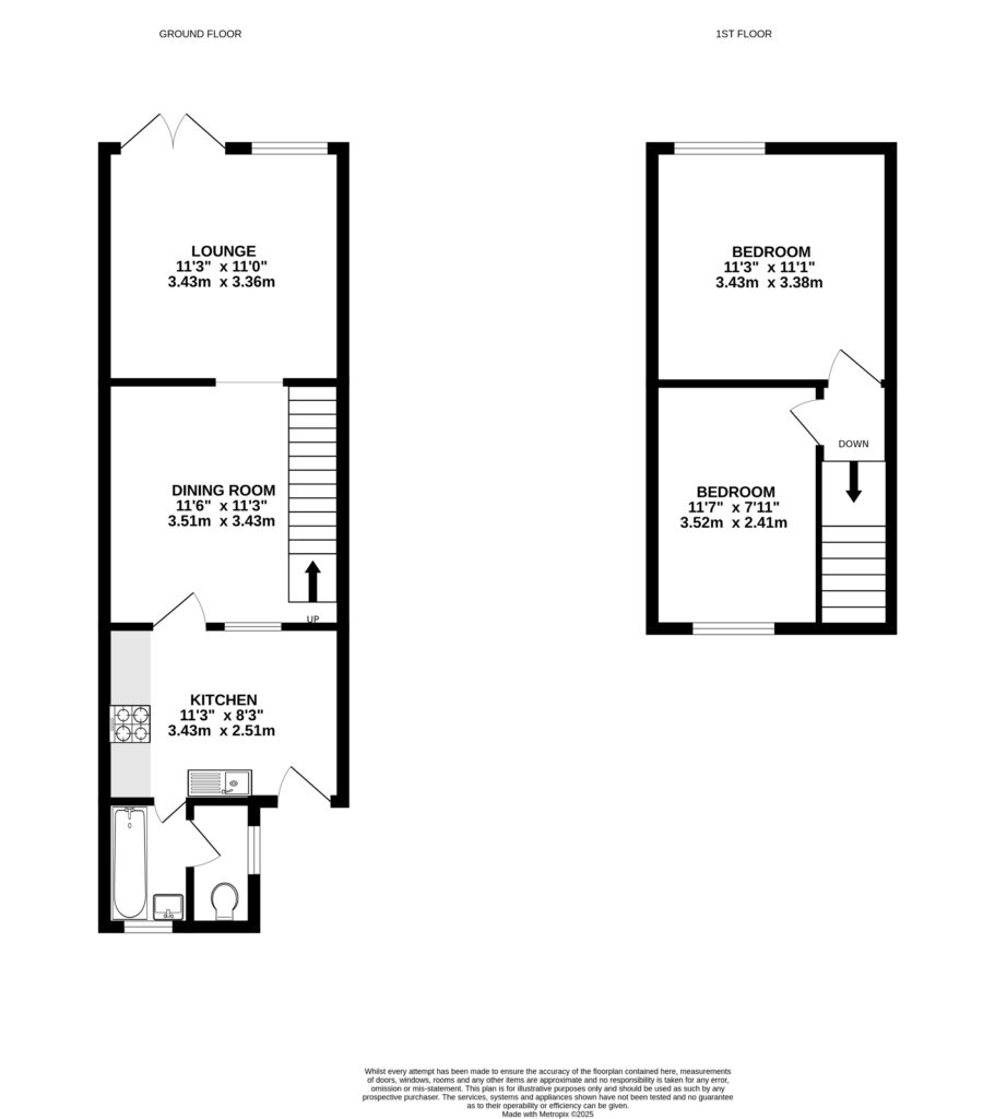
A delightful two-bedroom Victorian terraced cottage that was built in the early 1900`s and is situated in a peaceful lane in North Farnham. The property is beautifully presented inside with a well-established private garden to the rear. Inside the property the fitted kitchen has a spacious and airy feel with a vaulted ceiling, Velux windows and exposed brickwork adding an abundance of character. The bathroom comprises a three-piece suite including a shower over the bath. The dining room provides a generous space which is ideal for entertaining, with the stairs tucked neatly to the side of the room with space underneath for storage or a desk. The living room has solid wood flooring with a stunning exposed brick fireplace, a log burner, and double French doors to the rear that lead out to the beautiful rear garden. On the upper level there are two generously sized double bedrooms, one positioned to the front of the house and the other to the rear. The principal bedroom is equipped with two fitted double cupboards and has exquisite views of the garden and the Surrey Hills. The property is offered in an immaculate decorative condition throughout and needs to be viewed to be appreciated. There is off road parking in the private road to the front of the property too.
Property Summary
Two Bedrooms
Living Room
Dining Room
Kitchen
Bathroom
Garden and Parking
Outstanding Views
EPC: C (72)
Council Tax Band: C
FIND OUT HOW MUCH YOU CAN BORROW
Stamp duty calculator
Mortgage calculator
















