2 BEDROOM Semi-Detached Bungalow
£400,000
Guide Price
High Drive, Basingstoke, Hampshire, RG22
Freehold
- 2 bed
- 1 bath
- 1 receptions
Full description
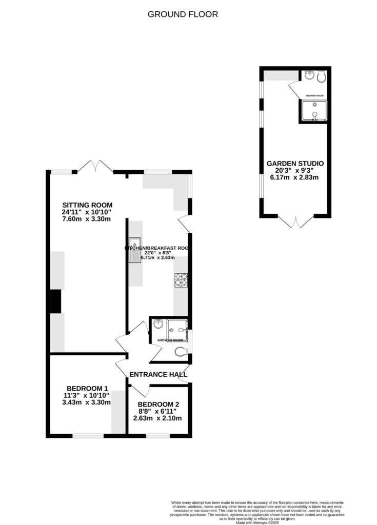
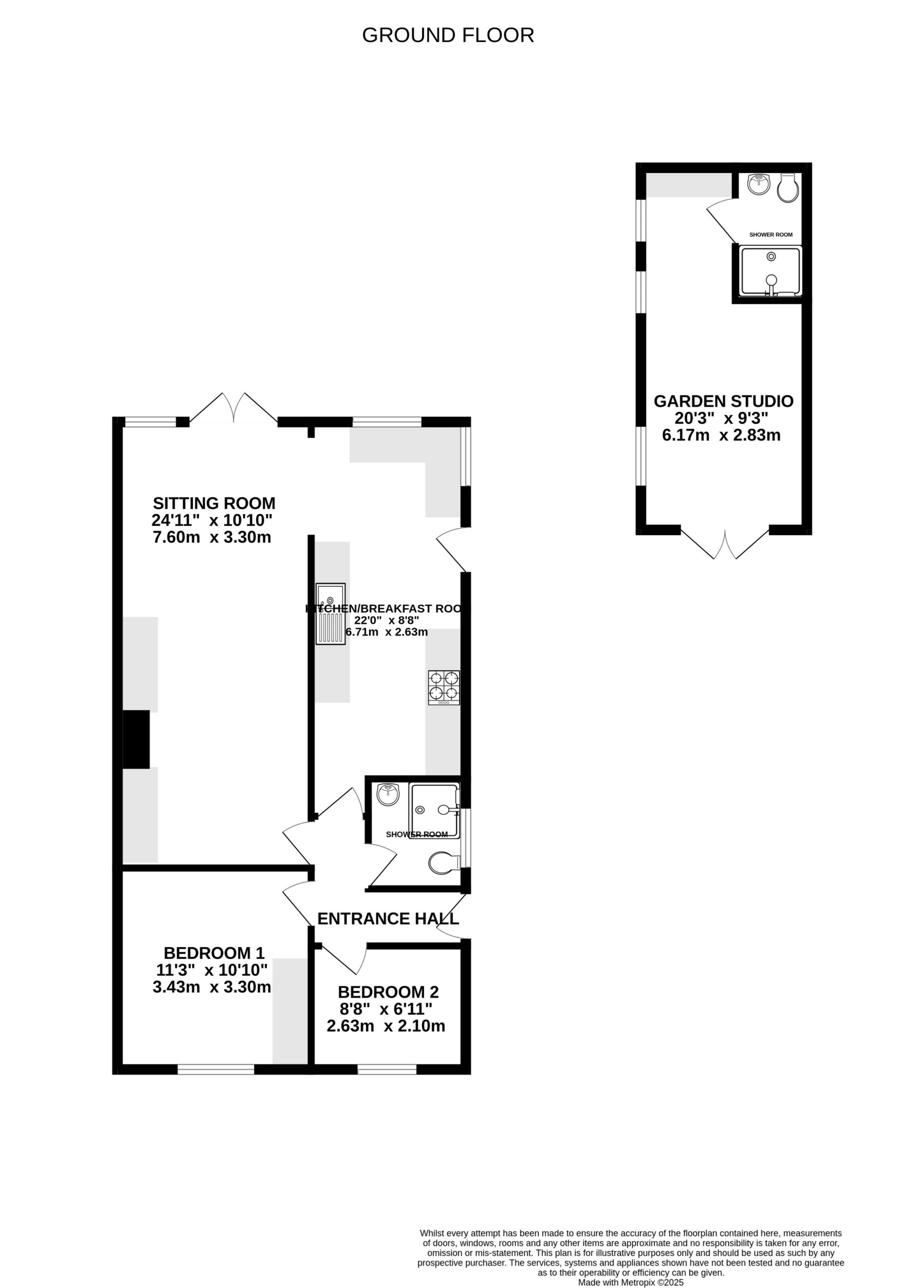
SPACIOUS DRIVEWAY AND CABIN IN THE GARDEN. Extended Accommodation in Excellent Condition Throughout
Tucked away in the ever popular Berg Estate, this extended and well presented two bedroom semi-detached bungalow offers bright and spacious living throughout. Ideally located with easy access to bus routes and local shops, the accommodation includes a Howdens fitted kitchen, open plan living and breakfast area, and a reception room. There is also a modern refitted wet room featuring a good sized shower.
Outside there is ample parking, and a private rear garden. The garden includes a log cabin with its own kitchen area and shower, providing extra versatile space. This ideal home is available with no onward chain complications.
Property Summary
Two Double Bedrooms
Semi-Detached Bungalow
Extended
Well Presented Throughout
Modern Kitchen and Shower Room
Spacious, Open Plan Reception Areas
Close to Local Bus Routes and Shops
EPC: C (71)
Council Tax Band: C
FIND OUT HOW MUCH YOU CAN BORROW
Stamp duty calculator
Mortgage calculator














