2 BEDROOM Terraced House
£300,000
Holst Close, Basingstoke, Hampshire, RG22
Freehold
- 2 bed
- 1 bath
- 1 receptions
Full description
TWO DOUBLE BEDROOMS AND OPEN PLAN LIVING/DINING ROOM! Communal Parking, Double-Glazed Windows and Gas Heating Throughout
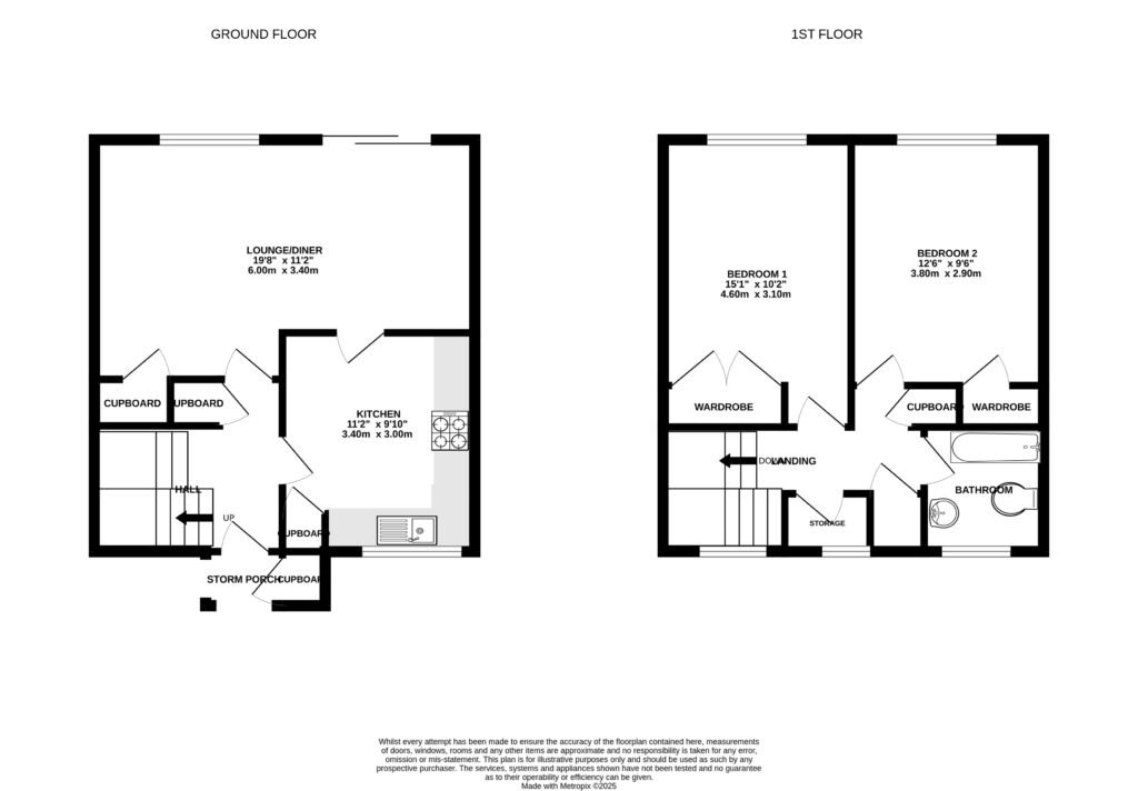
This property offers spacious and well-presented accommodation throughout, comprising two generously sized double bedrooms, a modern fitted bathroom, and a bright open-plan living, dining, and kitchen area?perfectly suited to contemporary lifestyles. Bi-folding doors lead out onto a decked terrace and the generous garden beyond, seamlessly connecting indoor and outdoor living, ideal for al fresco dining or summer entertaining. The stylish kitchen integrates beautifully within the layout, providing both a sociable and highly practical space for everyday living and hosting. Additional benefits include double-glazed windows, gas radiator heating, and access to communal parking. Early viewings are highly recommended!
Property Summary
Two Double Bedrooms
Terraced House
Open Plan Living/Dining/Kitchen
Communal Parking
Enclosed Rear Garden
Desirable Location
Close to Local Amenities
EPC: C (79)
Council Tax Band: C
FIND OUT HOW MUCH YOU CAN BORROW
Stamp duty calculator
Mortgage calculator









