2 BEDROOM End of Terrace House
£210,000
Asking Price
Maple Avenue, Farnborough, Hampshire, GU14
Leasehold
Apartment Department
- 2 bed
- 1 bath
- 1 receptions
Full description
The advertised price is based on a 60% share on a shared ownership basis. This property is also available for a 100% share at £350,000.
Perfectly positioned in Maple Avenue, in the popular Guillemont area, is this charming two bedroom family home with a spacious layout and modern design.
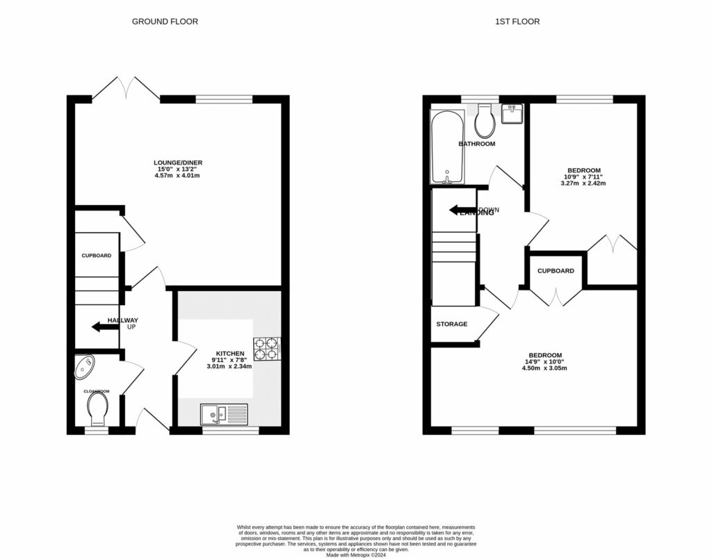
The ground floor consists of a good size kitchen with fitted appliances, a spacious lounge/diner with access out to the rear garden, and there is also a downstairs cloakroom.
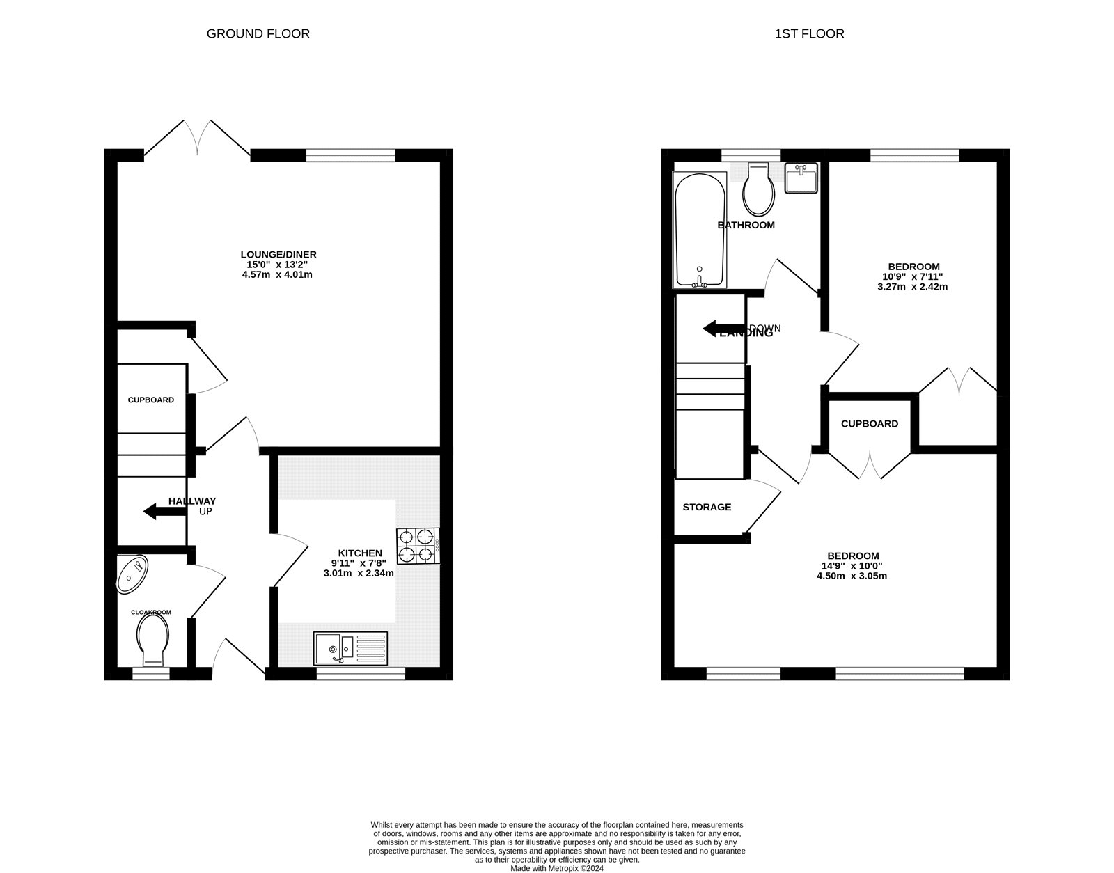
The first floor offers two spacious double bedrooms both offering built in wardrobes and there is a sleek three-piece family bathroom overlooking the garden.
Property Summary
Two Double Bedrooms
End of Terrace
Downstairs Cloakroom
Popular Location
Parking
Close to Hawley Lake
Close to Local Schools
EPC: C (75)
Council Tax Band: C
FIND OUT HOW MUCH YOU CAN BORROW
Stamp duty calculator
Mortgage calculator

















