2 BEDROOM Flat / Apartment
£240,000
Asking Price
Wallis Square, Farnborough, Hampshire, GU14
Leasehold
Apartment Department
- 2 bed
- 2 bath
- 1 receptions
Full description
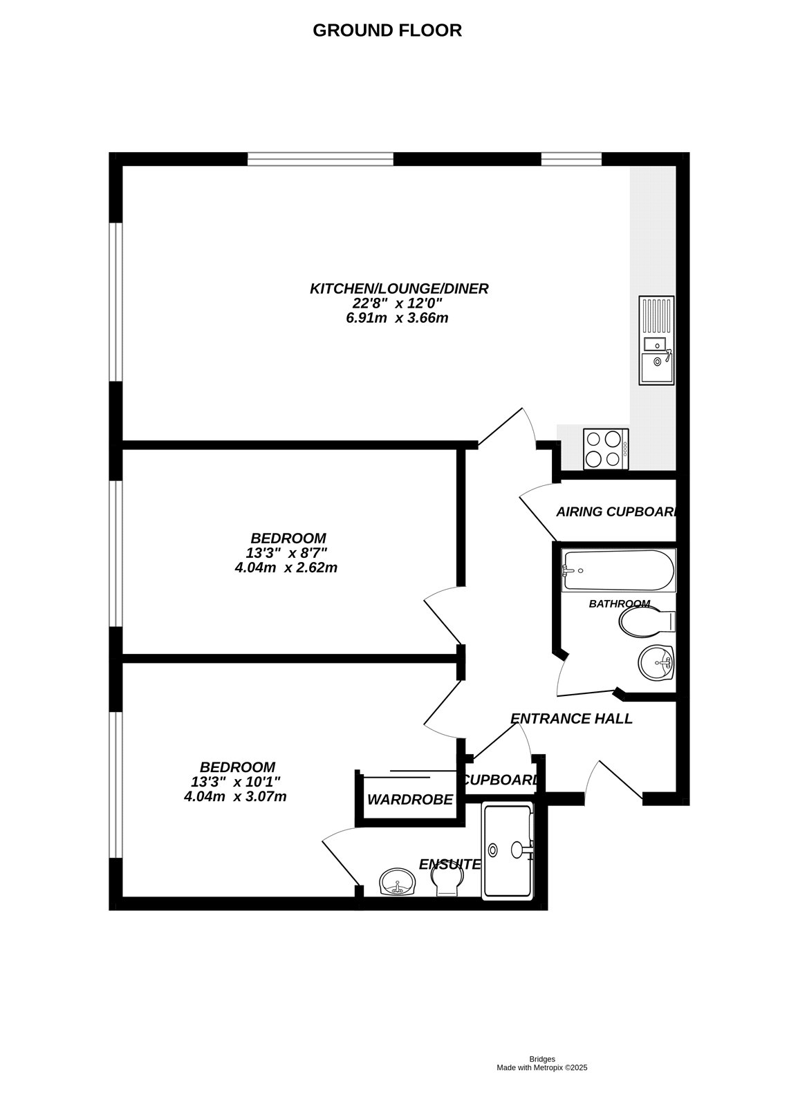
A SPACIOUS TWO BEDROOM APARTMENT! Located on the Third Floor in the Wallis Square Development
Situated in the sought-after Wallis Square development, this spacious two bedroom third floor apartment offers modern living with stylish finishes throughout. The property features a bright and contemporary kitchen/diner with integrated appliances, creating a welcoming space for both everyday living and entertaining. The principal bedroom benefits from a sleek en suite, while ample storage adds to the practicality of the home. Lincoln Court further offers secure entry systems at both access points, lift access to all floors, and ample parking for residents and visitors across the development.
Property Summary
Two Double Bedrooms
Third Floor Apartment
En Suite to Principal Bedroom
Fitted Kitchen
Ample Parking
Estimated Rental Price £1,300 pcm
Great Commuter Links
EPC: D (65)
Council Tax Band: C
FIND OUT HOW MUCH YOU CAN BORROW
Stamp duty calculator
Mortgage calculator









