2 BEDROOM Detached Bungalow
£450,000
Guide Price
Wellington Lane, Farnham, Surrey, GU9
Freehold
- 2 bed
- 2 bath
- 1 receptions
Full description
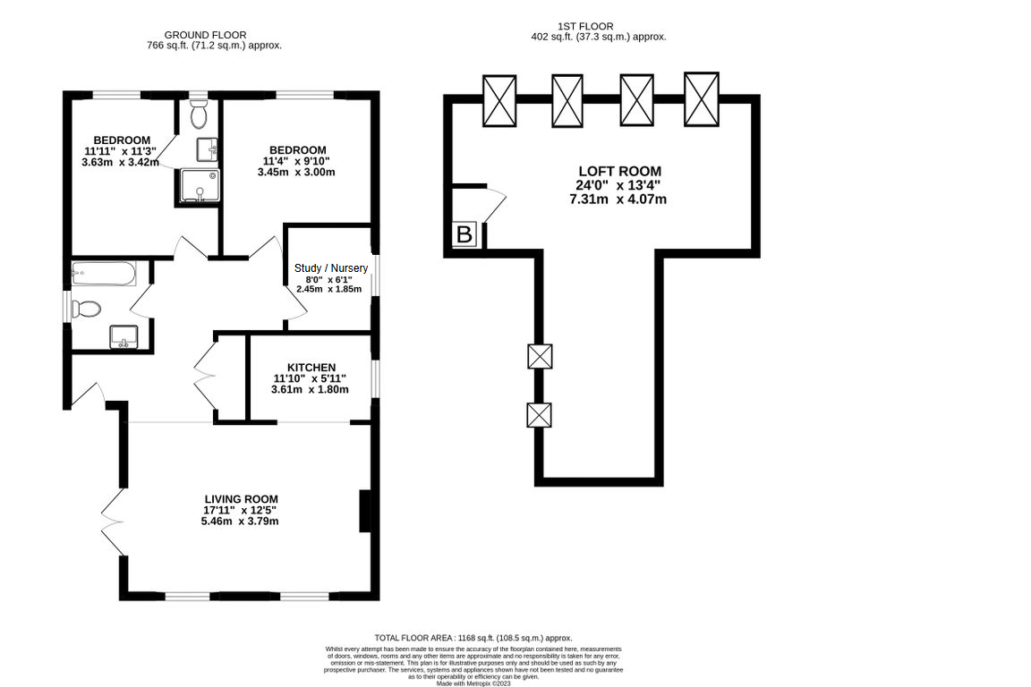
RECENTLY CONSTRUCTED TWO BEDROOM BUNGALOW WITH STUDY/NURSERY! Offered to the Market with No Onward Chain
Recently constructed and finished to a high standard throughout, this two-bedroom detached bungalow with an additional study/nursery is set along a peaceful lane within walking distance of sought-after schools. Offered to the market with no onward chain, it presents an excellent opportunity for a variety of buyers. The heart of the home is a stunning open plan kitchen/living/dining room, enjoying a double aspect that floods the space with natural light. The contemporary kitchen is fitted with integrated appliances and flows seamlessly into the living area, which features an open fire and patio doors leading out to a private terrace. The property further benefits from two well-proportioned bedrooms, with the principal bedroom boasting a modern en suite. A third versatile room offers the ideal space for a study or nursery, while a stylish three-piece family bathroom completes the accommodation. Additionally, the partially converted loft provides exciting scope for future development, with potential to create further living space once a staircase and finishing touches are added.
Property Summary
Two/Three Bedrooms
Detached Bungalow
No Onward Chain
Recently Constructed
Potential for a Loft Conversion (STPP)
Modern Kitchen with Integrated Appliances
Driveway Parking
EPC: B (83)
Council Tax Band: E
FIND OUT HOW MUCH YOU CAN BORROW
Stamp duty calculator
Mortgage calculator










