2 BEDROOM Flat / Apartment
£210,000
Asking Price
Wingate Court, Aldershot, Hampshire, GU11
Leasehold
Apartment Department
- 2 bed
- 1 bath
- 1 receptions
Full description
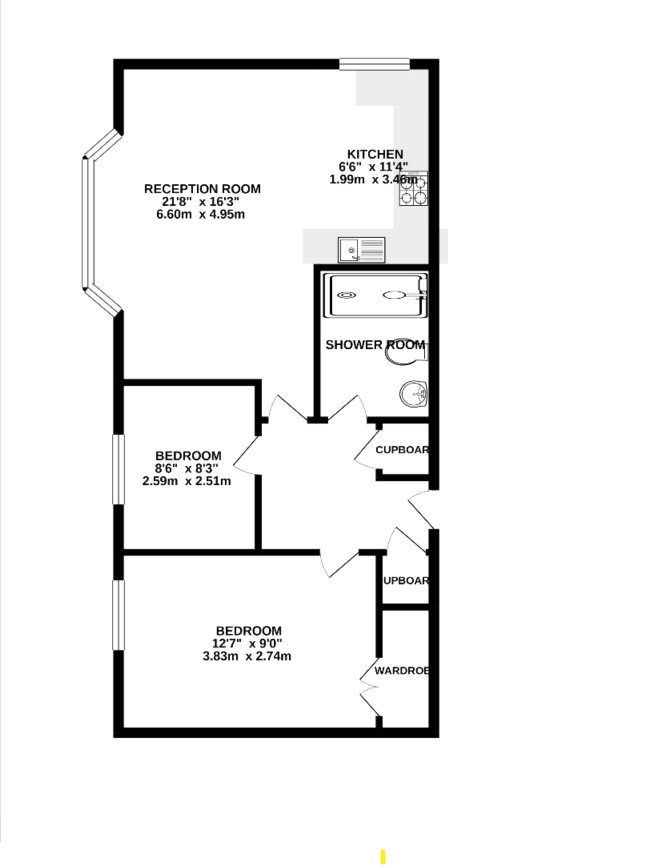
HOT NEW LISTING! – TWO BEDROOM APARTMENT – Extended Lease and Close to Local Amenities
Situated within walking distance of Aldershot Town Centre, this first floor apartment is offered to the market with a lease extension to 125 years ideal for investors and first time buyers alike.
The accommodation has been improved by the current owners and comprises a spacious open plan living room and kitchen, two bedrooms, and a modern bathroom. Externally, there are communal gardens, along with both allocated and visitor parking.
Tesco and Morrisons superstores are nearby, as is Aldershot Mainline Station and other excellent transport links.
Property Summary
Two Bedrooms
First Floor Apartment
Modern Bathroom
Very Good Condition
Open Plan Lounge/Kitchen
Allocated Parking
Replaced Flooring to Lounge
EPC: C (76)
Council Tax Band: C
FIND OUT HOW MUCH YOU CAN BORROW
Stamp duty calculator
Mortgage calculator







