3 BEDROOM Terraced House
£459,950
Asking Price
Addison Road, Reading, Berkshire, RG1
Freehold
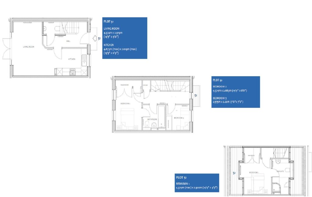
- 3 bed
- 2 bath
- 1 receptions
Full description
** LAST REMAINING PLOT **
HELP TO BUY AVAILABLE
A select development of five stylish three bedroom townhouses, all finished to an excellent specification with gardens and private parking in the convenient location of Addison Road, Reading.
Each of the homes provides two double and one single bedroom, generous living accommodation and two bathrooms, ideal for couples, commuters and expanding families. All have gardens and allocated parking.The specification has been designed for modern living, with contemporary kitchens which feature a full range of integrated appliances. The stylish bathrooms include vanity units and the bedrooms all benefit from sleek fitted wardrobes. All finished in a neutral colour scheme with floor finishes provided throughout.
The houses are conveniently located near Reading Station with London Paddington a 25 minute trip on the fast train. Caversham village offers a good variety of amenities, shops, cafes and eateries. A more impressive range of leisure and shopping facilities can be found within easy reach in Reading Town Centre, and surrounding districts. The commuter has convenient access to the M4 and A4 for London, Wales and the South West.
FIND OUT HOW MUCH YOU CAN BORROW
Stamp duty calculator
Mortgage calculator










