3 BEDROOM Semi-Detached House
£450,000
Asking Price
Abbey Way, Farnborough, Hampshire, GU14
Freehold
- 3 bed
- 2 bath
- 2 receptions
Full description
THOUGHTFULLY EXTENDED Three Bedroom Home
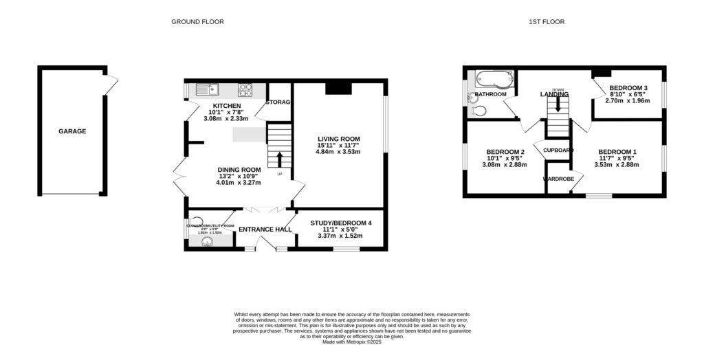
This well proportioned home has been thoughtfully extended to the front, creating a versatile study/home office that is currently used as a fourth bedroom, along with a spacious entrance porch and a combined utility room and downstairs cloakroom. Internally, the property offers a generous and well balanced layout, with an open plan kitchen and dining room positioned on one side of the house, ideal for family living and entertaining, while a spacious and comfortable living room occupies the other. Upstairs, there are two good sized double bedrooms and a spacious single bedroom. The property benefits from UPVC double glazing, gas central heating and offers plenty of space throughout, presenting an excellent opportunity for buyers to personalise and add value.
Property Summary
Three/Four Bedrooms
Extended Family Home
Open Plan Kitchen/Diner
Spacious Living Room
Spacious Corner Plot Garden
Garage and Driveway Parking
Close to Town and Transport
EPC: TBC
Council Tax Band: D
FIND OUT HOW MUCH YOU CAN BORROW
Stamp duty calculator
Mortgage calculator
















