3 BEDROOM Semi-Detached House
£425,000
Asking Price
Alma Way, Farnham, Surrey, GU9
Freehold
- 3 bed
- 1 bath
- 2 receptions
Full description
THREE BEDROOM SEMI-DETACHED IN SOUGHT AFTER RESIDENTIAL LOCATION, Available With No Onward Chain
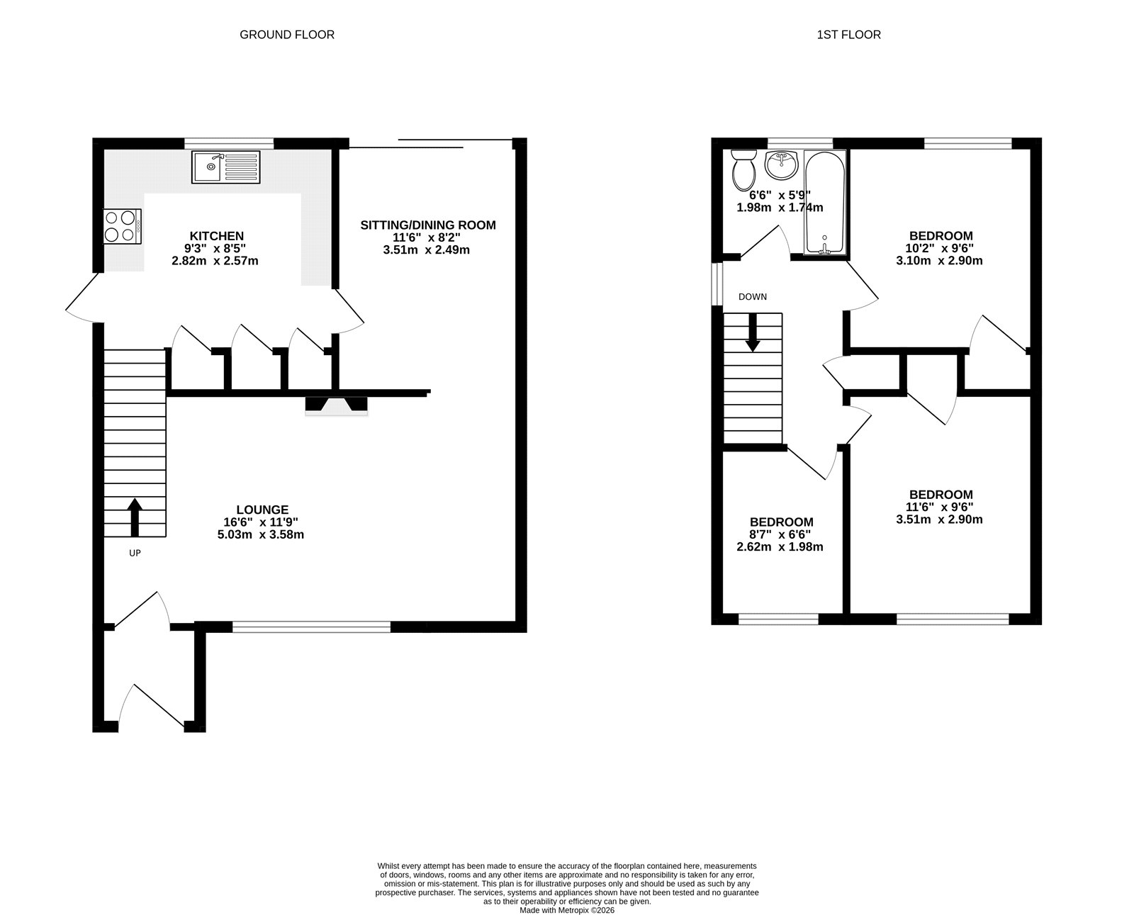
A fantastic opportunity to acquire this well presented three bedroom semi-detached family home, ideally located within close proximity to Farnham Park and a selection of highly regarded local schools. The ground floor accommodation comprises a welcoming lounge leading through to a dining area, featuring sliding doors that provide direct access to the rear garden. The kitchen is conveniently positioned at the rear of the property, enjoying a pleasant outlook over the garden and offering ample storage space.
To the first floor are three well proportioned bedrooms, two of which are generously sized, along with a three piece family bathroom suite. The property also offers excellent potential to extend and improve, subject to the necessary planning permissions (STPP).
Property Summary
Three Bedrooms
Semi-Detached
Parking/ Garage
No Onward Chain
Fantastic Scope to Improve STPP
Sought After Location
Close to Farnham Park
Close to Popular Schools
EPC: D (65)
Council Tax Band: D
FIND OUT HOW MUCH YOU CAN BORROW
Stamp duty calculator
Mortgage calculator







