3 BEDROOM End of Terrace House
£375,000
Guide Price
Avon Close, Farnborough, Hampshire, GU14
Freehold
- 3 bed
- 1 bath
- 1 receptions
Full description
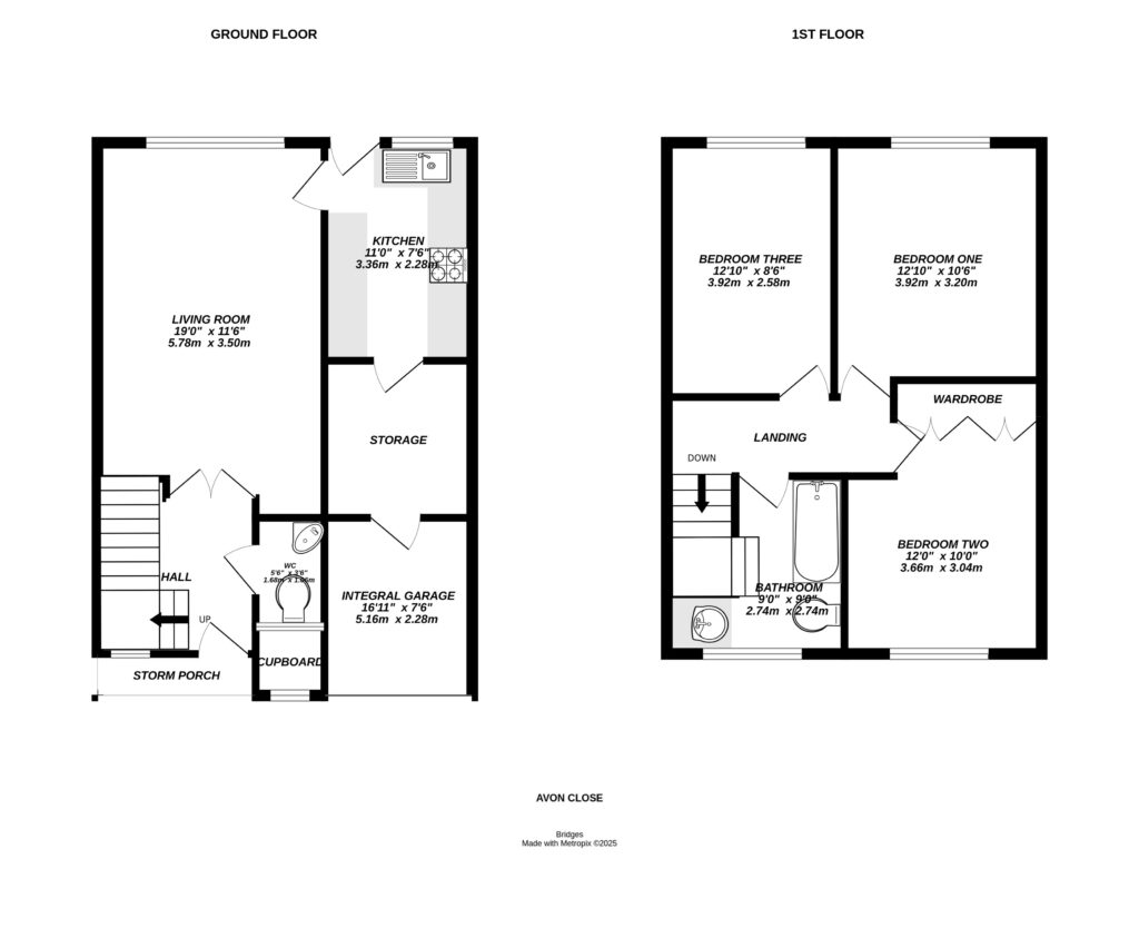
END OF TERRACE HOME Offers Practical Living Accommodation
This well presented three bedroom end of terrace home offers spacious and practical living accommodation, ideal for families or professionals. The property features three generously sized double bedrooms, providing flexible space for bedrooms, home offices or guest rooms. A convenient downstairs cloakroom adds to the home’s everyday practicality, while the integral garage offers secure parking or additional storage. The layout is designed to maximise comfort and functionality throughout.
Property Summary
Three Bedrooms
End of Terrace
Driveway Parking
Downstairs Cloakroom
Integral Garage
Practical Layout
Ideal Family Home
EPC: E (54)
Council Tax Band: C
FIND OUT HOW MUCH YOU CAN BORROW
Stamp duty calculator
Mortgage calculator








