3 BEDROOM Semi-Detached House
£525,000
Asking Price
Blackthorns, Fleet, Hampshire, GU51
Freehold
- 3 bed
- 3 bath
- 1 receptions
Full description
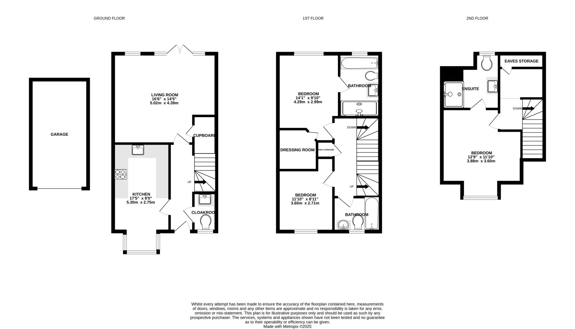
NO ONWARD CHAIN – Town House Within The Edenbrook Estate
SOLD PRIOR TO MARKETING, SIMILAR PROPERTIES REQUIRED!
Benefiting from no onward chain, this modern townhouse is located within the popular Edenbrook estate.
The kitchen is positioned at the front of the property and features a bay window with space for a dining table, while the rear offers a spacious living area with patio doors leading out to the garden.
The bedrooms are a real highlight of this design. The principal bedroom boasts a dressing room and a four piece en suite, accompanied by a further double bedroom and a modern family bathroom on the first floor.
The second floor provides a spacious and characterful double bedroom with its own en suite.
Property Summary
Three Bedrooms
Semi-Detached Home
Three Bathrooms
Edenbrook Estate
Garage Parking
Modern Throughout
No Onward Chain
EPC: C (78)
Council Tax Band: E
FIND OUT HOW MUCH YOU CAN BORROW
Stamp duty calculator
Mortgage calculator















