3 BEDROOM Terraced House
£325,000
Asking Price
Caswell Close, Farnborough, Hampshire, GU14
Freehold
- 3 bed
- 1 bath
- 2 receptions
Full description
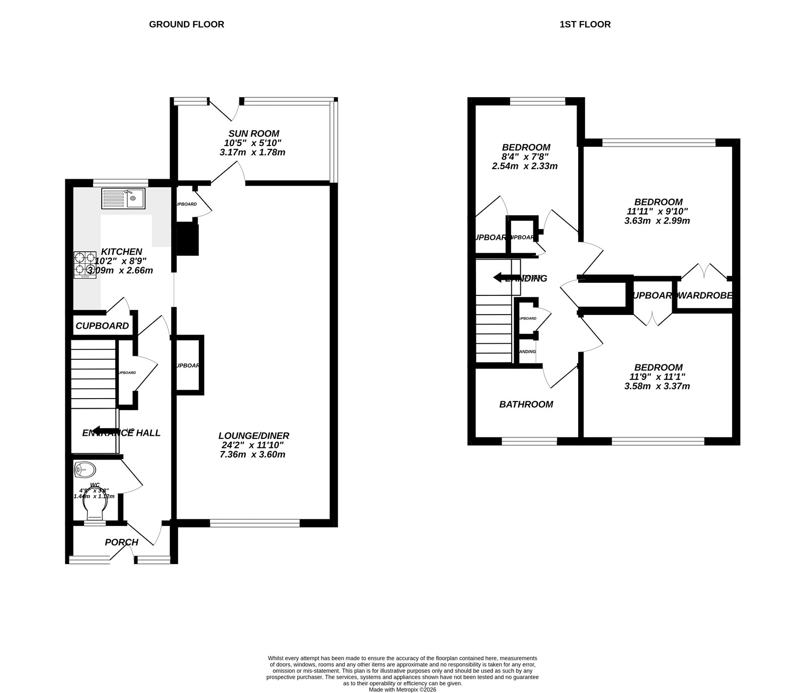
DESIRED LOCATION Spacious Mid Terraced Family Home
This spacious mid terraced family home is presented in good order throughout and offers well balanced accommodation, ideal for modern family living. The property comprises three well proportioned bedrooms, a convenient cloakroom and a generous lounge/dining room, perfect for both relaxing and entertaining.
Viewing is highly recommended.
Property Summary
Three Bedrooms
Spacious
Refitted Kitchen
Enclosed Garden
Communal Parking
Close to Local Amenities
Great Transport Links
EPC: TBC
Council Tax Band: B
FIND OUT HOW MUCH YOU CAN BORROW
Stamp duty calculator
Mortgage calculator










