3 BEDROOM End of Terrace House
£400,000
Guide Price
Fawn Drive, Aldershot, Hampshire, GU12
Freehold
- 3 bed
- 1 bath
- 1 receptions
Full description
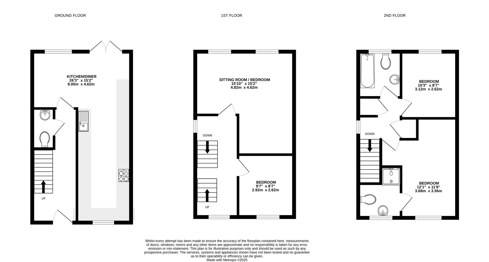
THREE BEDROOM TOWN HOUSE – Benefits Of Driveway Parking and Garage
Bridges welcome to the market this spectacular family home. Set across three floors and with the additional benefits of driveway parking and a garage, this property is ideal for first-time buyers and local home movers.
The downstairs accommodation comprises a stunning open-plan kitchen/dining room with patio doors leading out to the enclosed rear garden. There is also a downstairs cloakroom.
The first floor offers the main sitting room, which can also be used as a family bedroom, as well as a further bedroom. On the second floor, there is a family bathroom, the third bedroom, and the master bedroom, which benefits from an en suite.
The property is positioned in the popular ‘Woodland Walk’ development and is within proximity to local shops, schools, and amenities.
Property Summary
Three Bedrooms
Driveway Parking and Garage
Solar Panels for Efficiency
Open Planned Kitchen / Dining Room
Family Bathroom and En Suite
Close to Local Schools and Shops
Ever Popular Woodland Walk Development
EPC: C (74)
Council Tax Band: D
FIND OUT HOW MUCH YOU CAN BORROW
Stamp duty calculator
Mortgage calculator
















