3 BEDROOM Semi-Detached House
£500,000
Asking Price
Headley Way, Ash, Surrey, GU12
Freehold
- 3 bed
- 2 bath
- 1 receptions
Full description
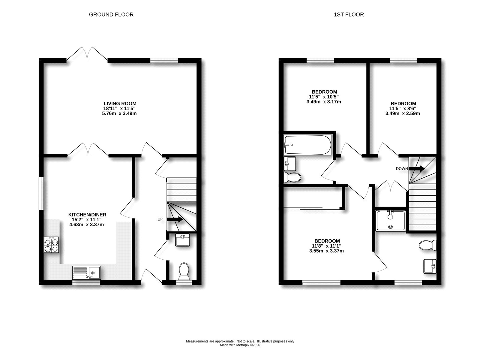
THREE BEDROOM SEMI-DETACHED HOME, PRESENTED IN IMMACULATE CONDITION THROUGHOUT WITH DRIVEWAY PARKING AND GARAGE
Located within a quiet cul-de-sac, opposite woodland, is this stunning three bedroom semi-detached home. The property is only three years old and still has seven years left on its new home warranty. Downstairs boasts a spacious living room with double doors that lead out into the garden, a cloak room and a spacious kitchen/diner with integrated appliances and plenty of work top and cupboard space.
Upstairs benefits from three good size bedrooms, an en suite to the main bedroom and a family bathroom suite.
Property Summary
Three Bedroom Semi-Detached Home
Driveway Parking and EV Charger
Garage
En Suite to Principal
Cloakroom
New Home Warranty in Place
Kitchen/Diner
EPC: B (84)
Council Tax Band: E
FIND OUT HOW MUCH YOU CAN BORROW
Stamp duty calculator
Mortgage calculator

















