3 BEDROOM Semi-Detached House
£430,000
Asking Price
Heron Close, Church Crookham, Fleet, Hampshire, GU52
Freehold
- 3 bed
- 2 bath
- 2 receptions
Full description
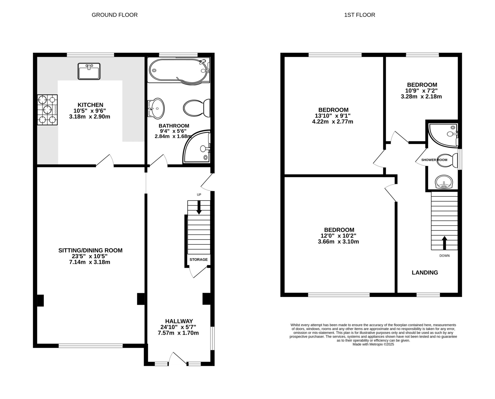
Extended Three Bedroom Family Home in Desirable Church Crookham Location
Set at the entrance of a quiet cul-de-sac in popular Church Crookham, this extended three bedroom semi-detached home is ideal for family living. It`s close to local amenities, woodland walks, and sought-after schools.
Inside, a spacious hallway leads to an open-plan living/dining room, a well equipped kitchen, and a modern four piece bathroom. Upstairs offers three bright bedrooms and a contemporary shower room.
Outside, enjoy a well-planted front garden, driveway parking, and a private rear garden perfect for children or summer entertaining. Scope to extend (STPP) adds long-term potential.
Viewings are highly recommended.
Property Summary
Three Bedrooms
Semi-Detached
Extended Family Home
Sought After School Catchment
Close to Amenities
Viewing Advised
Bath & Shower Room
EPC: TBC
Council Tax Band: D
FIND OUT HOW MUCH YOU CAN BORROW
Stamp duty calculator
Mortgage calculator












