3 BEDROOM End of Terrace House
£475,000
Asking Price
Lennel Gardens, Church Crookham, Fleet, GU52
Freehold
- 3 bed
- 1 bath
- 2 receptions
Full description
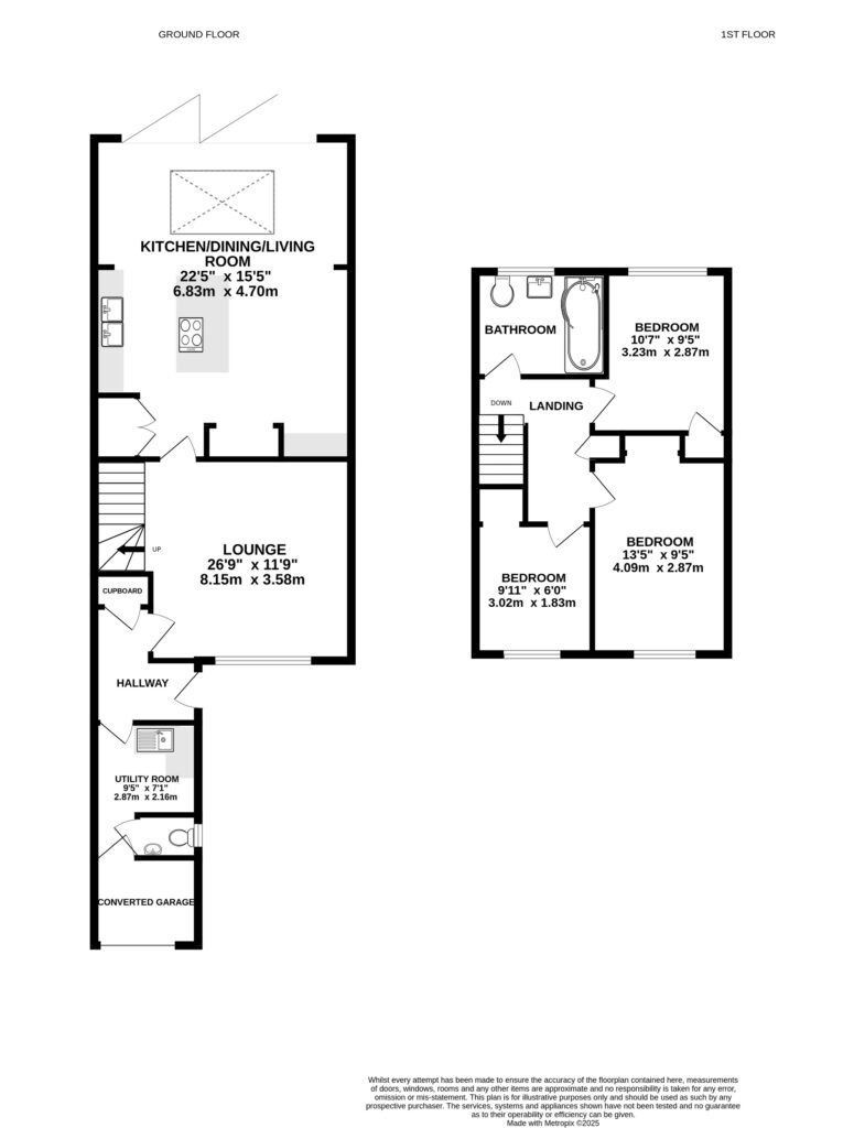
EXTENDED THREE BEDROOM END OF TERRACE HOUSE WITH AN OPEN PLAN FAMILY ROOM WOW FACTOR! Peaceful Woodland Views Can Be Enjoyed From The Rear Garden With Direct Access to Velmead Woods
Bridges are delighted to present to the market this impressive extended family home, beautifully positioned backing onto Velmead Woods. On the ground floor, the property opens with a welcoming entrance hall. To the left is a practical utility room with an adjoining cloakroom, as well as access to the remaining section of the garage following a partial conversion. Returning to the hallway, you?ll find a useful storage cupboard before entering the spacious lounge, complete with built-in under-stair storage and stairs leading to the first floor. The real highlight of this home is the stunning open plan kitchen/dining/living space. This exceptional area features underfloor heating and a contemporary kitchen with a central island incorporating a built-in hob. The kitchen also benefits from a twin Butler sink, a boiling water tap for instant hot drinks, and a water softener. The dining zone easily accommodates a family-sized table, while the extended rear section provides a cosy seating area with space for a TV. A striking lantern-style roof window bathes the space in natural light, complemented by full-width bi-fold doors that seamlessly connect the indoors to the garden. Upstairs, there are three bedrooms?two generous doubles and a well-proportioned single?all served by a stylish three-piece family bathroom.
Property Summary
Three Bedroom End of Terrace House
Backing Onto Velmead Woods
Stunning Open Plan Living/Dining/Kitchen
Underfloor Heating
Bi-fold Garden Doors
Driveway Parking
Utility and Downstairs Cloakroom
EPC: D (66)
Council Tax Band: C
FIND OUT HOW MUCH YOU CAN BORROW
Stamp duty calculator
Mortgage calculator






















