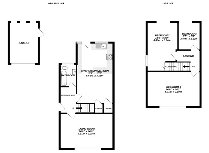
3 BEDROOM Semi-Detached House
£425,000
Offers in Excess of
Mason Road, Farnborough, Hampshire, GU14
Freehold
- 3 bed
- 1 bath
- 2 receptions
Full description
A THREE BEDROOM SEMI-DETACHED FAMILY HOME WITH A DRIVEWAY, GARAGE AND SOUTHERLY ASPECT GARDEN: Offered to the Market with No Onward Chain
This well presented three bedroom semi-detached property offers modern living throughout following a recent refurbishment. Ideally suited to first time buyers, families, or investors, the home is ready to move straight into and benefits from no onward chain.
The property features a bright and spacious living area, a contemporary kitchen, and three well proportioned bedrooms. Outside, you?ll find a driveway, a garage, and a private rear garden, perfect for relaxing or entertaining.
With its fresh finish, convenient layout, and excellent location, this is a fantastic opportunity not to be missed.
Property Summary
Three Bedroom Semi-Detached Home
Garage
Driveway
Cul-de-Sac Location
Close to Local Amenities
No Onward Chain
Potential to Extend (STPP)
EPC: C (74)
Council Tax Band: D
FIND OUT HOW MUCH YOU CAN BORROW
Stamp duty calculator
Mortgage calculator














