3 BEDROOM Semi-Detached House
£415,000
Guide Price
Sherwin Crescent, Farnborough, Hampshire, GU14
Freehold
- 3 bed
- 1 bath
- 1 receptions
Full description
ATTRACTIVE THREE BEDROOM SEMI-DETACHED FAMILY HOME Offers Well Balanced Living Accommodation!
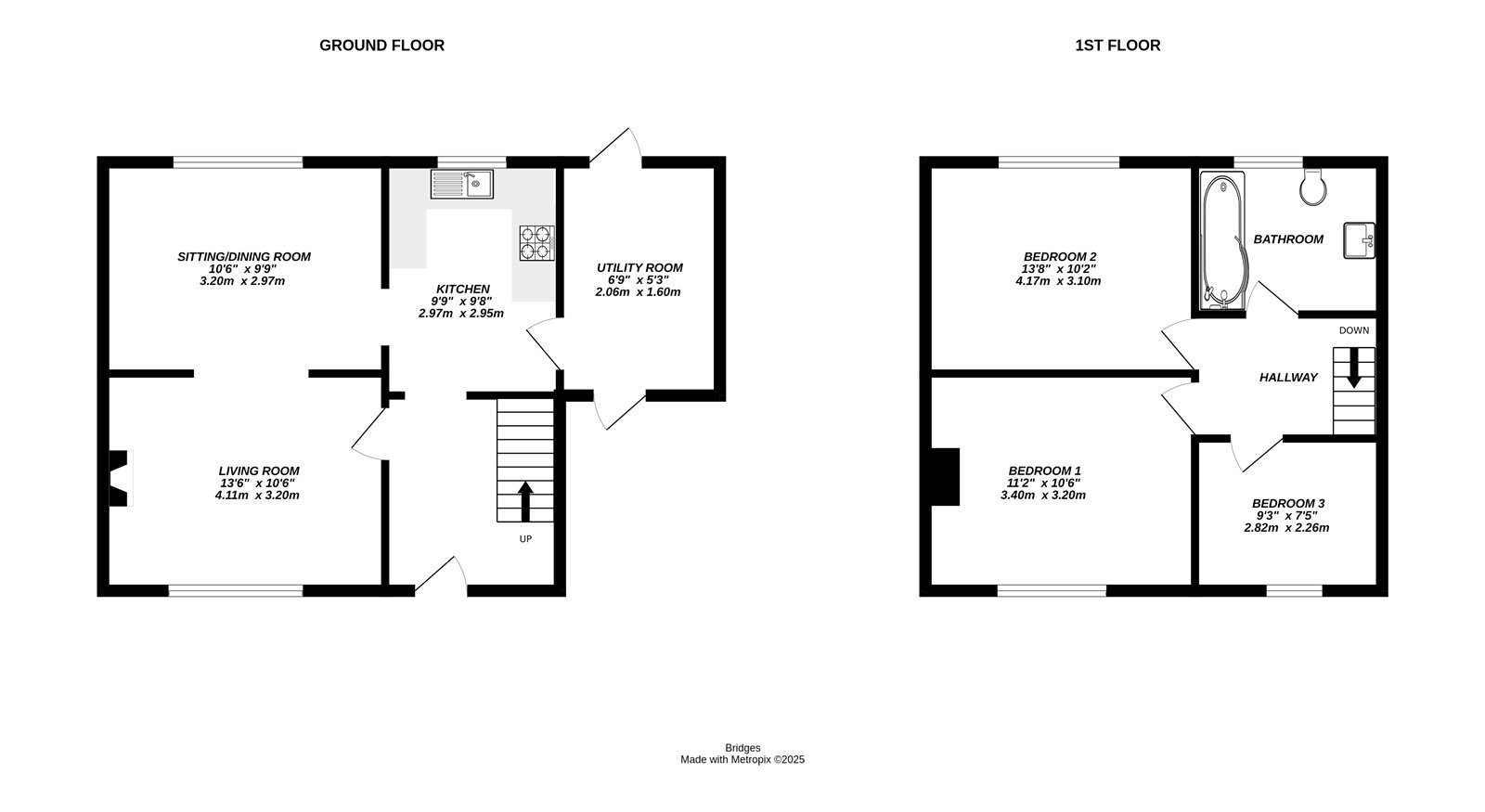
This attractive three bedroom semi-detached family home offers well balanced living accommodation, ideal for growing families. The ground floor comprises a welcoming lounge that flows seamlessly into the dining room, creating a bright and sociable living space. A separate kitchen leads through to a convenient utility room, providing additional storage and functionality.
Upstairs, the first floor features two spacious double bedrooms, a well designed three piece family bathroom, and a good sized third bedroom overlooking the front of the property. Thoughtfully arranged, the layout combines comfort with practicality, making this an inviting and versatile home.
Located in a popular residential area, the property benefits from close proximity to a selection of local schools, Farnborough Gate shopping centre, and Frimley Park Hospital, ensuring easy access to amenities, education, and healthcare.
Property Summary
Three Bedrooms
Semi-Detached Family Home
Bright Lounge Leading to Dining Room
Separate Kitchen with Utility Room
Two Double Bedrooms and One Single
Modern Three Piece Family Bathroom
Generous Landscaped Rear Garden
EPC: TBC
Council Tax Band: C
FIND OUT HOW MUCH YOU CAN BORROW
Stamp duty calculator
Mortgage calculator















