3 BEDROOM Semi-Detached House
£465,000
Asking Price
Titchener Way, Hook, Hampshire, RG27
Freehold
- 3 bed
- 3 bath
- 1 receptions
Full description
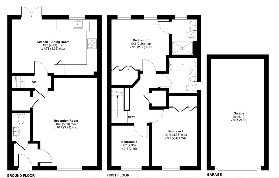
HUTCHINS DESIGN MODERN THREE BEDROOM SEMI DETACHED HOME! With a Captivating Kitchen/Diner, En Suite and Downstairs Cloakroom.
This beautifully presented modern semi detached home exudes a bright and airy feel throughout, offering both style and comfort for contemporary living. Located within the highly sought after David Wilson Oakwood Grange development, the property showcases the popular Hutchins design, thoughtfully laid out across two floors. Upstairs, the home features three well proportioned bedrooms, with the principal bedroom boasting a generously sized en suite. Two of the bedrooms benefit from built-in wardrobes, providing excellent storage solutions, while a sleek family bathroom with a shower over bath completes the upper level. On the ground floor, a welcoming hallway leads to a convenient cloakroom and a spacious 16ft living room that seamlessly flows into a central lobby area. To the rear, the impressive 15ft kitchen/dining room serves as the heart of the home, featuring modern fittings and patio doors that open directly onto the garden, perfect for entertaining and indoor-outdoor living.
Property Summary
Three Bedrooms
Modern House
Semi Detached
En Suite and Downstairs Cloakroom
16ft Living Room
15ft Kitchen/Diner
Garage and Off-Road Parking
EPC: B (83)
Council Tax Band: D
FIND OUT HOW MUCH YOU CAN BORROW
Stamp duty calculator
Mortgage calculator








