3 BEDROOM Semi-Detached House
£415,000
Asking Price
Trinity Way, Basingstoke, Hampshire, RG24
Freehold
- 3 bed
- 2 bath
- 1 receptions
Full description
NO ONWARD CHAIN Low Maintenance Garden
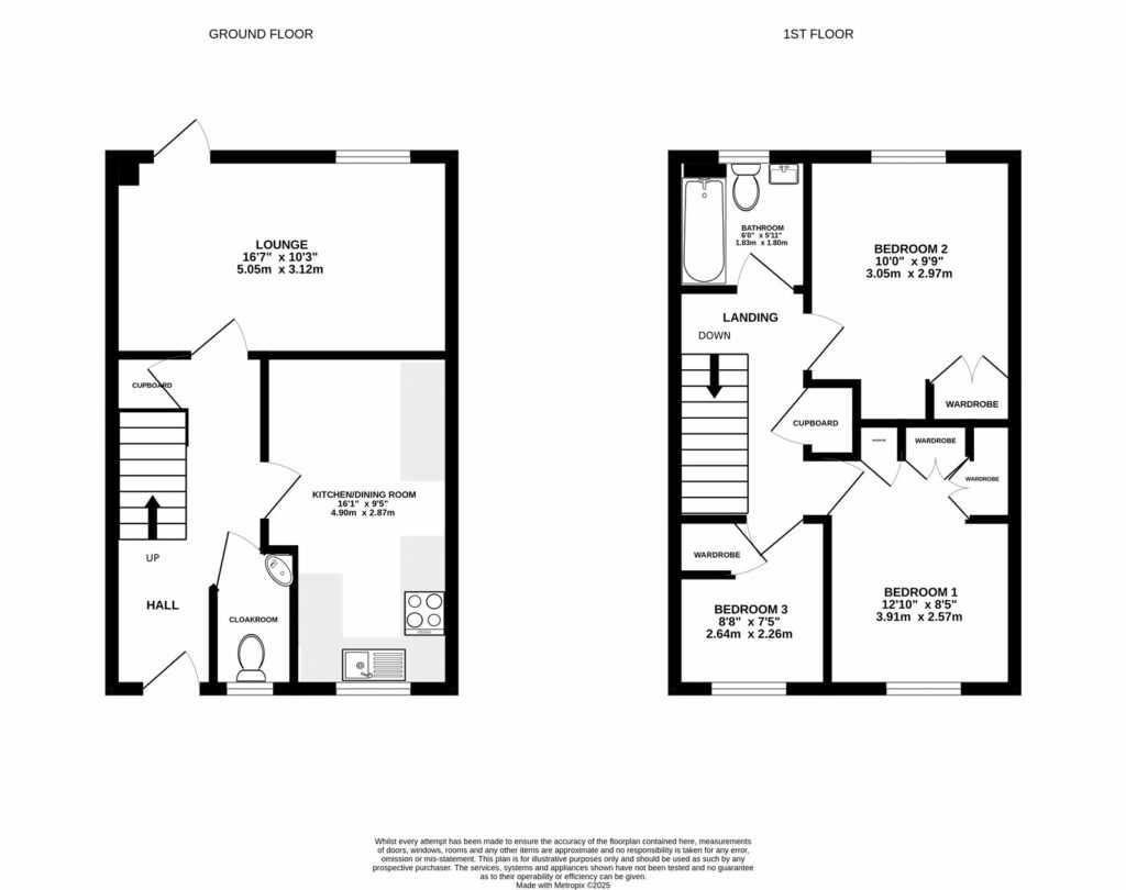
Presented to the market with no onward chain, this well proportioned, three bedroom semi-detached property offers ideal family accommodation in a desirable location.
Upon entering, you are welcomed by a spacious entrance hall providing access to a convenient downstairs cloakroom, a modern kitchen/dining room, and a bright, rear facing lounge with a door opening out onto the garden.
Upstairs, the property offers three good sized bedrooms and a contemporary family bathroom, creating a comfortable and practical layout for modern living.
Property Summary
Three Bedrooms
EV Charge Point Wiring
Low Maintenance Garden
Downstairs Cloakroom
Driveway Parking
Kitchen/Dining Room
Close to Local Shops and Amenities
EPC: B (84)
Council Tax Band: D
FIND OUT HOW MUCH YOU CAN BORROW
Stamp duty calculator
Mortgage calculator











