3 BEDROOM Semi-Detached House
£550,000
Asking Price
West Street, Odiham, Hook, Hampshire, RG29
Freehold
- 3 bed
- 1 bath
- 2 receptions
Full description
CHARACTER COTTAGE A STONE’S THROW FROM ODIHAM HIGH STREET AND LOCAL SCHOOLS. Dont Miss Out, Enquire Today.
Tucked away on a peaceful no through road just moments from Odiham High Street, this charming home combines village convenience with quiet seclusion.
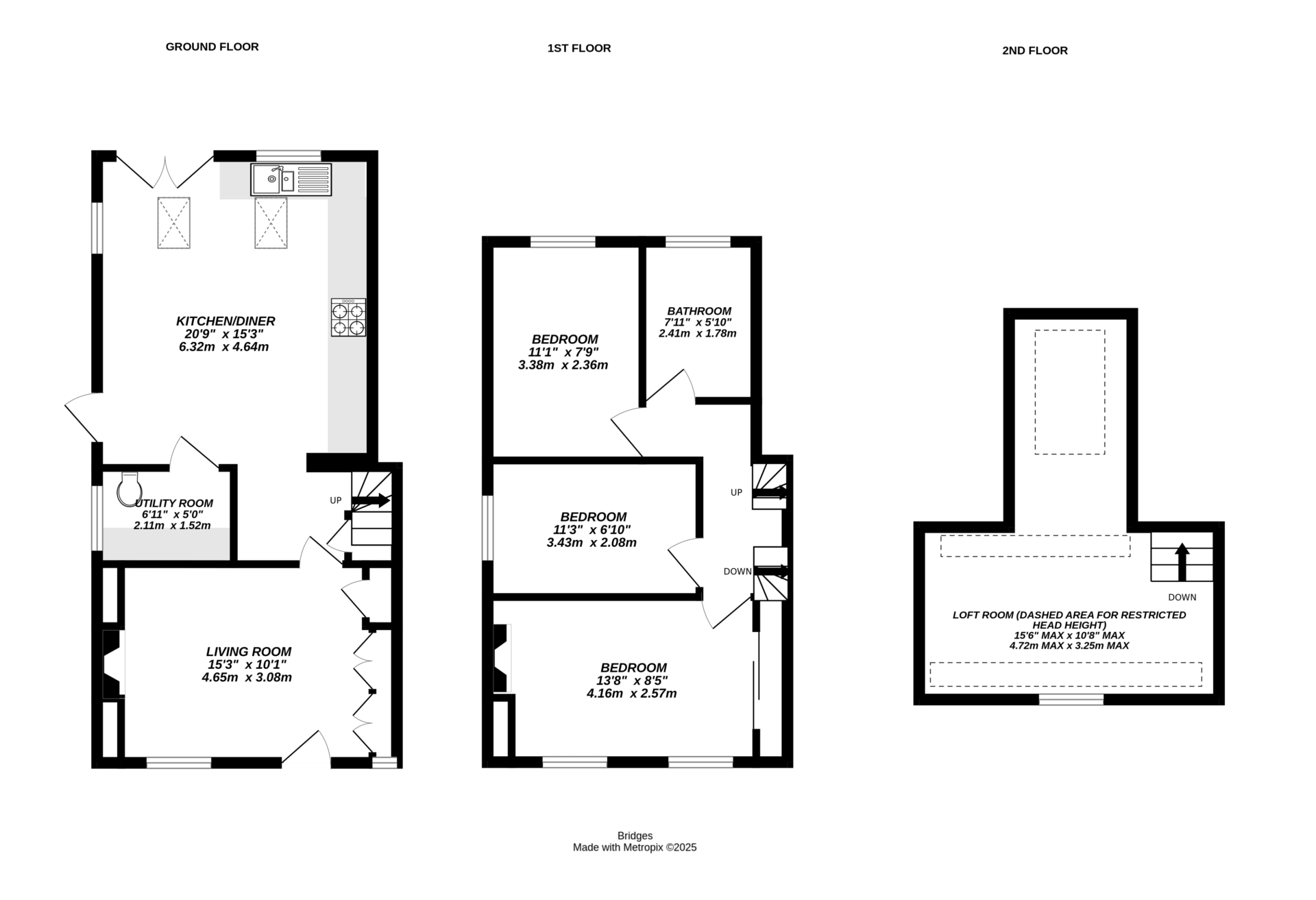
Inside, a welcoming living room with a cosy log burner and period features creates an inviting space to unwind. Beyond, a versatile lobby currently serves as a home office.
The open plan kitchen and dining area blend farmhouse character with modern style, complemented by a utility room, cloakroom, and access to the side and rear gardens.
Upstairs offers a light filled principal bedroom with built-in storage, two further bedrooms, and a modern family bathroom. A top floor bonus room provides flexible space for a playroom, guest room, or study.
Just a short walk from popular local schools. Early viewing is highly recommended.
Property Summary
Three Bedrooms
Semi-Detached Home
Bonus Loft Room
Character Features
Central Odiham
Off Street Parking
Close to Local Schools
EPC: D (66)
Council Tax Band: D
FIND OUT HOW MUCH YOU CAN BORROW
Stamp duty calculator
Mortgage calculator






















