3 BEDROOM Detached House
£650,000
Guide Price
Wilmot Way, Camberley, Surrey, GU15
Freehold
- 3 bed
- 2 bath
- 2 receptions
Full description
FLEXIBLE ACCOMMODATION ON A SPACIOUS PLOT BACKING ON TO CAMBERLEY HEATH 18TH HOLE! Great Potential to Extend STPPP and Offered with No Onward Chain.
A light and spacious three/four bedroom detached chalet/bungalow, located in a sought after cul-de-sac and backing onto the 18th hole of Camberley Heath Golf Course.
The property offers excellent potential (STPP) and is presented to the market with no onward chain.
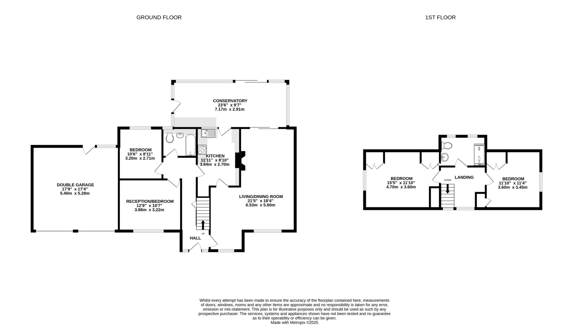
The accommodation comprises an L-shaped living room, separate dining room/bedroom, kitchen, spacious conservatory, bedroom, and bathroom all on the ground floor.
On the first floor, there are two further double bedrooms with fitted wardrobes and a shower room.
An internal inspection is highly recommended to truly appreciate all that this property has to offer.
Property Summary
Three/Four Bedrooms
Detached Chalet/Bungalow
Flexible Accommodation
Great Potential to Extend STPP
0.14 of an Acre Plot
Double Garage and Driveway
No Onward Chain
EPC: C (71)
Council Tax Band: E
FIND OUT HOW MUCH YOU CAN BORROW
Stamp duty calculator
Mortgage calculator























