4 BEDROOM Terraced House
£425,000
Asking Price
Alder Close, Ash Vale, Surrey, GU12
Freehold
- 4 bed
- 1 bath
- 1 receptions
Full description
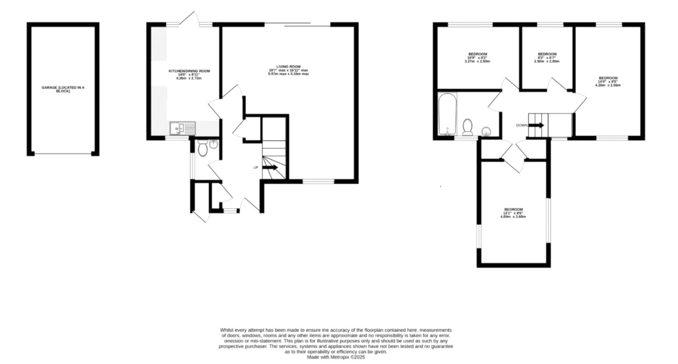
FANTASTIC FOUR BEDROOM HOME ON THE POPULAR AVONDALE DEVELOPMENT IN ASH VALE
Brilliantly positioned on the ever popular Avondale development, this beautifully presented four bedroom family home offers over 1,150 sq. ft. of well planned living space. Ideally located within minutes of two mainline train stations with direct services to London Waterloo, Reading, and Guildford, as well as sought-after primary and secondary schools perfect for commuters and families alike. The nearby Ash Ranges and Basingstoke Canal provide excellent opportunities for walking, cycling, and outdoor recreation.
The ground floor features a rear aspect kitchen/dining room with garden access, ideal for entertaining, alongside a spacious lounge that also opens onto the garden. A cloakroom and built-in storage complete the downstairs layout.
Upstairs, the property offers three generous double bedrooms and a versatile fourth bedroom, currently used as a study, along with a refitted family bathroom.
Property Summary
Four Bedrooms
Family Home
Immaculate Condition Throughout
Close to Local Amenities
Downstairs Cloakroom
Close to Schools
Good Size Rear Garden
EPC: C (69)
Council Tax Band: D
FIND OUT HOW MUCH YOU CAN BORROW
Stamp duty calculator
Mortgage calculator













