4 BEDROOM Detached House
£425,000
Asking Price
Boxalls Lane, Aldershot, Hampshire, GU11
Freehold
- 4 bed
- 1 bath
- 3 receptions
Full description
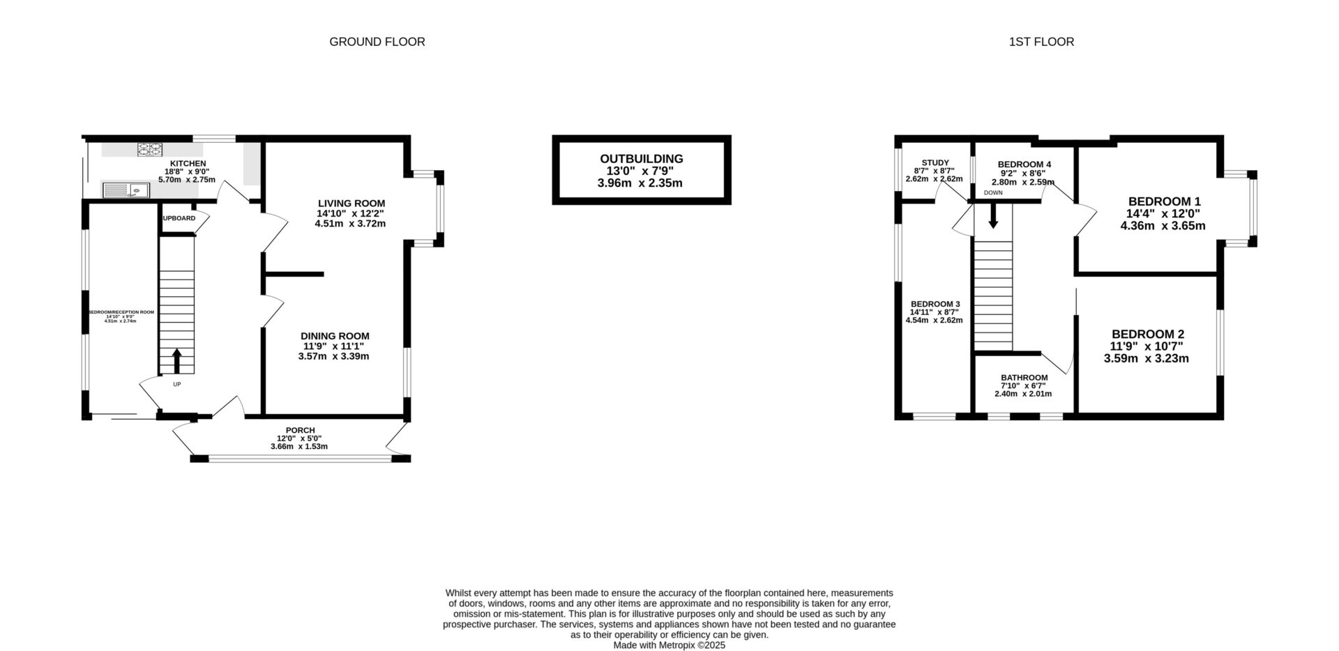
Four Bedroom Extended Home With No Onward Chain
Positioned on a sought after residential road in Aldershot is this four bedroom detached home, offered to the market for the first time in almost 60 years.
The property provides substantial space thanks to a double storey rear extension and presents an excellent opportunity for a buyer to make their own mark, as both the house and plot require modernisation throughout. The ground floor accommodation includes an entrance porch, living room, dining room, kitchen, and an additional reception room/bedroom, both of which feature sliding doors leading to the garden. Upstairs offers four generous double bedrooms, a family bathroom, and a study.
The garden includes a decked seating area, outbuilding space, and a koi pond. The property sits on a sizeable corner plot with driveway parking to the rear.
This home truly must be seen to be appreciated.
Property Summary
Four Bedrooms Detached Family Home
Double Storey Extension
Perfect For a Buyer to Add Their Own Stamp to
Driveway Parking
Substantial Plot
Open Planned Living / Dining Room
No Onward Chain Complications
EPC: D (61)
Council Tax Band: E
FIND OUT HOW MUCH YOU CAN BORROW
Stamp duty calculator
Mortgage calculator

















