4 BEDROOM Detached House
£600,000
Asking Price
Brampton View, Farnborough, Hampshire, GU14
Freehold
- 4 bed
- 4 bath
- 2 receptions
Full description
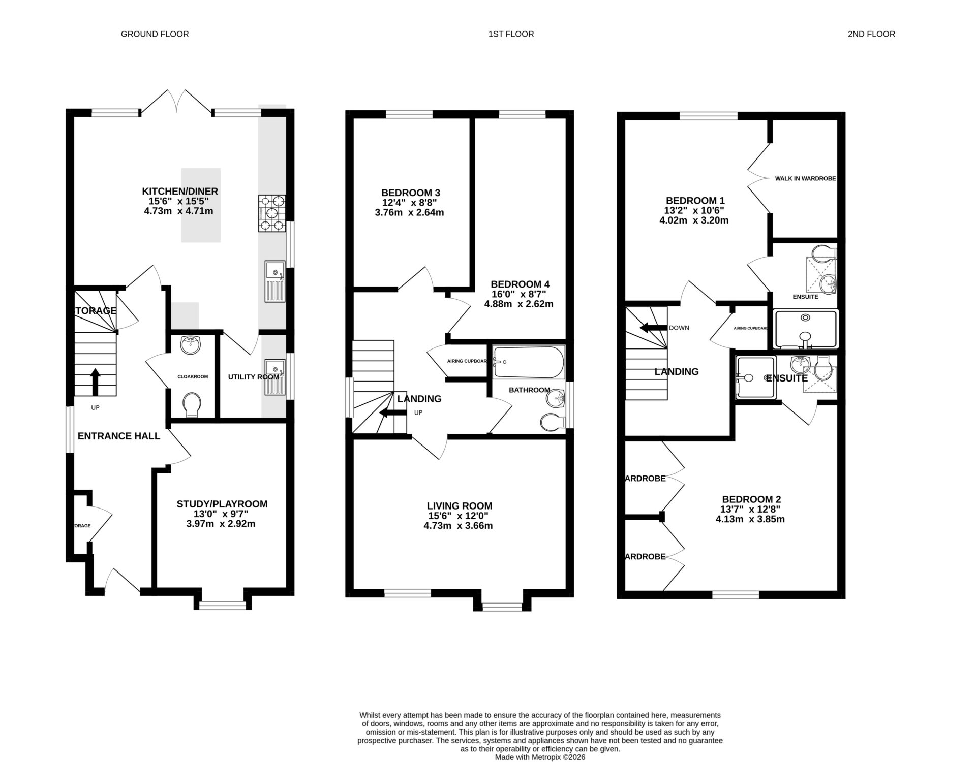
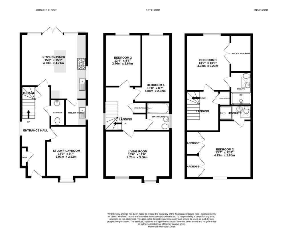
EX SHOWHOME WITH ADDITIONAL PARKING. Four Double Bedrooms and Two Reception Rooms
This impressive four double bedroom detached townhouse is presented in immaculate condition throughout and offers generous, versatile accommodation ideal for modern family living. The property boasts two spacious and well-proportioned reception rooms, providing excellent space for both entertaining and everyday use, alongside a stunning kitchen/diner that forms the heart of the home, as well as solar panels and an electric vehicle charging port.
Upstairs, the main bedroom benefits from a walk-in wardrobe and a stylish en suite shower room, while the second bedroom also enjoys its own en suite facilities. Two further double bedrooms are served by a contemporary family bathroom, complemented by a convenient downstairs cloakroom. Finished to a high standard, this home combines space, comfort, and practicality in a highly desirable setting.
Property Summary
Four Generous Bedrooms
Located Overlooking Greenery
Open Plan Kitchen/Diner
Two Reception Rooms
Two En Suites and Family Bathroom
Stunning Condition Throughout
Huge Amount of Storage
EPC: A (95)
Council Tax Band: F
FIND OUT HOW MUCH YOU CAN BORROW
Stamp duty calculator
Mortgage calculator

















