4 BEDROOM Terraced House
£425,000
Asking Price
Camford Close, Beggarwood, Basingstoke, Hampshire, RG22
Freehold
- 4 bed
- 2 bath
- 1 receptions
Full description
POPULAR AREA WITH GREENERY AROUND! Great Design with Kitchen on the Ground Floor
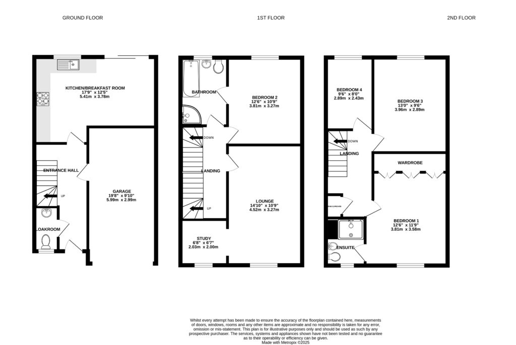
Spacious four bedroom townhouse in the sought after Beggarwood development. The ground floor features an integral garage, cloakroom, and a modern refitted kitchen/diner with Amtico flooring, integrated appliances (including wine cooler, oven, microwave, dishwasher, washer/dryer), stylish lighting, and French doors to the garden. The first floor offers a bright and spacious living room with a dedicated study area ideal for home working. This level also features a well proportioned double bedroom and a modern, recently refitted four piece family bathroom. The second floor hosts three generously sized bedrooms, including a principal bedroom with its own en suite shower room and a wall to wall range of built-in wardrobes. Additional features include gas central heating, double glazing throughout and driveway parking for two vehicles.
Property Summary
Four Double Bedrooms
Modern Kitchen Diner
Private Rear Garden
Driveway Parking for Two Cars
Two Bathrooms
Downstairs Cloakroom
Cul-de-Sac Location
EPC: C (73)
Council Tax Band: E
FIND OUT HOW MUCH YOU CAN BORROW
Stamp duty calculator
Mortgage calculator
















