4 BEDROOM Detached House
£625,000
Asking Price
Chingford Avenue, Farnborough, Hampshire, GU14
Freehold
- 4 bed
- 2 bath
- 1 receptions
Full description
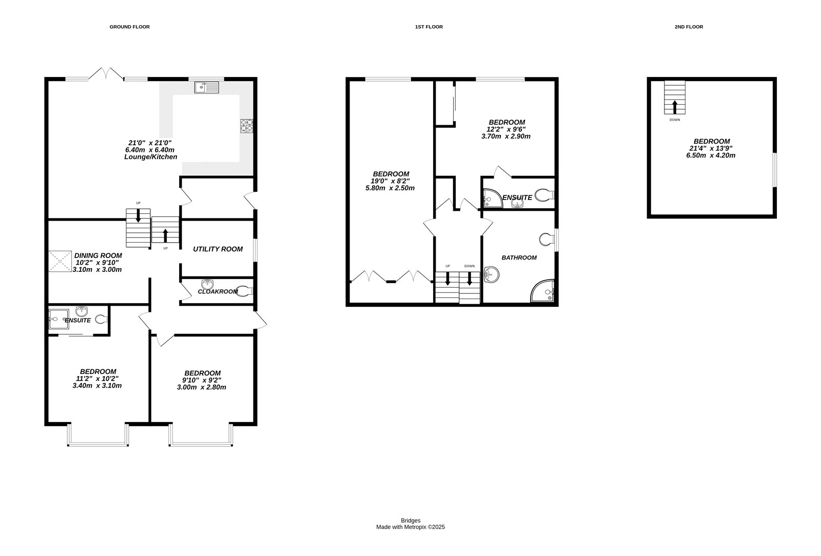
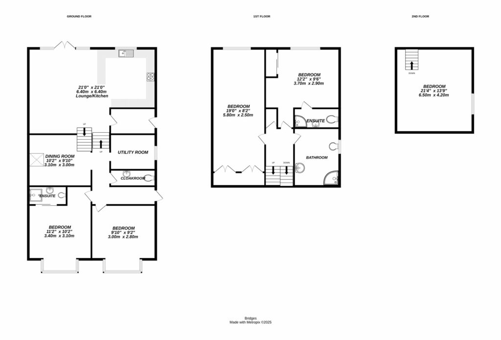
BEAUTIFULLY RENOVATED TRULY UNIQUE FOUR/FIVE BEDROOM Arranged over Four Spacious Floors
This beautifully renovated and truly unique four/five bedroom detached home is arranged over two split level floors. Thoughtfully modernised throughout, the property combines contemporary design with flexible living space, perfect for growing families or those seeking versatility.
The heart of the home is the impressive open plan kitchen and living area, designed for both everyday living and effortless entertaining. The sleek, modern kitchen flows seamlessly into a generous living and dining space, with good sized windows that fill the area with natural light. A separate utility room adds practicality and convenience.
Across the home, you’ll find four well proportioned bedrooms with the option for a fifth bedroom or additional living space, depending on your needs. The property features three stylish bathrooms plus a separate cloakroom, all finished to a high standard. Ample built-in storage throughout ensures the home remains clutter free while maximising usable space.
Property Summary
Four/Five Bedrooms
Spacious Detached Home
Open Plan Kitchen and Living Area
Three Bathrooms plus Cloakroom
Utility Room and Built-in Storage
Bright Modern Interiors
Spacious Garden and Off Street Parking
EPC: D (60)
Council Tax Band: E
FIND OUT HOW MUCH YOU CAN BORROW
Stamp duty calculator
Mortgage calculator



















