4 BEDROOM Detached House
£725,000
Guide Price
Coleford Bridge Road, Mytchett, Camberley, Surrey, GU16
Freehold
- 4 bed
- 2 bath
- 2 receptions
Full description
HOT NEW LISTING – A Truly Stunning 1930’s Family Home of Style and Substance with off road parking for Four Cars, Garage and Picturesque Landscaped garden.
***No Onward Chain*** A beautifully presented 1930s four bedroom home on the sought after Coleford Bridge Road, offering style, space, and versatility. The front garden bursts with colour, creating a warm welcome and strong kerb appeal. A private driveway provides parking for up to four cars, alongside a garage with excellent storage or workshop potential.
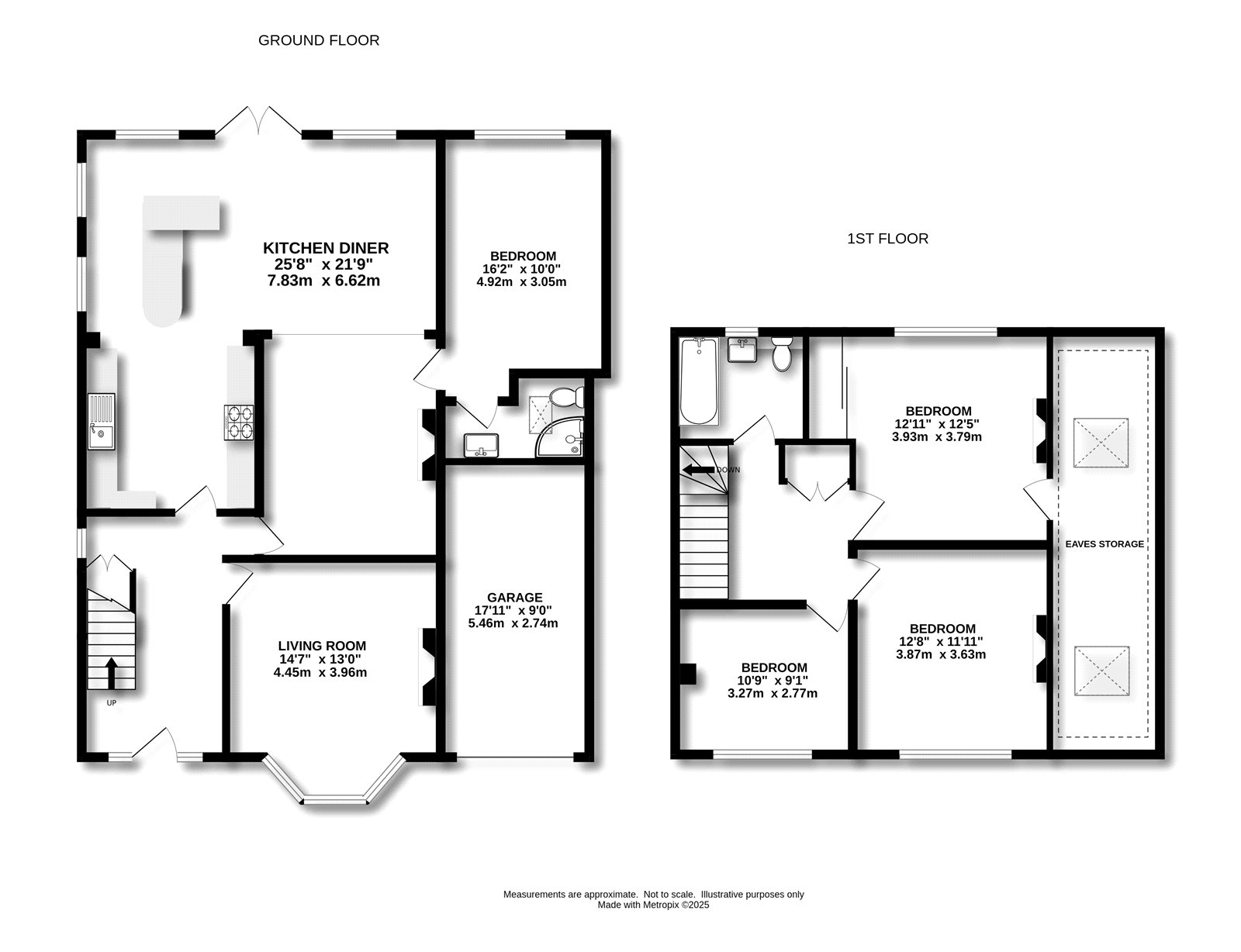
Inside, the spacious living room features a bay window and log burner, while the extended kitchen with central island flows into a bright Orangery perfect for entertaining. A cloakroom and versatile dining area complete the heart of the home.
The ground floor also includes a spacious bedroom with en suite, offering potential for a self contained annex. Upstairs, three double bedrooms and a stylish family bathroom continue the elegant feel, with scope to add a walk-in wardrobe and en suite to the main bedroom.
Outside, the landscaped garden backs onto a private paddock, offering complete privacy, mature planting, lawn, patio, potting sheds, and a polytunnel ideal for keen gardeners.
Coleford Bridge Road offers a rare blend of charm, flexibility, and exceptional outdoor space a true lifestyle home.
Property Summary
Four Bedroom Detached Home
No Onward Chain
Three Reception Rooms
Impressive 120ft Landscaped Garden
Driveway for Five Vehicles
Orangery With Sunlight Leading into Garden
Close to Major Transport Links
EPC: D (67)
Council Tax Band: E
FIND OUT HOW MUCH YOU CAN BORROW
Stamp duty calculator
Mortgage calculator































