4 BEDROOM Semi-Detached House
£500,000
Fullbrook Drive, Basingstoke, Hampshire, RG21
Freehold
- 4 bed
- 2 bath
- 2 receptions
Full description
FOUR DOUBLE BEDROOMS Popular Town Centre Location
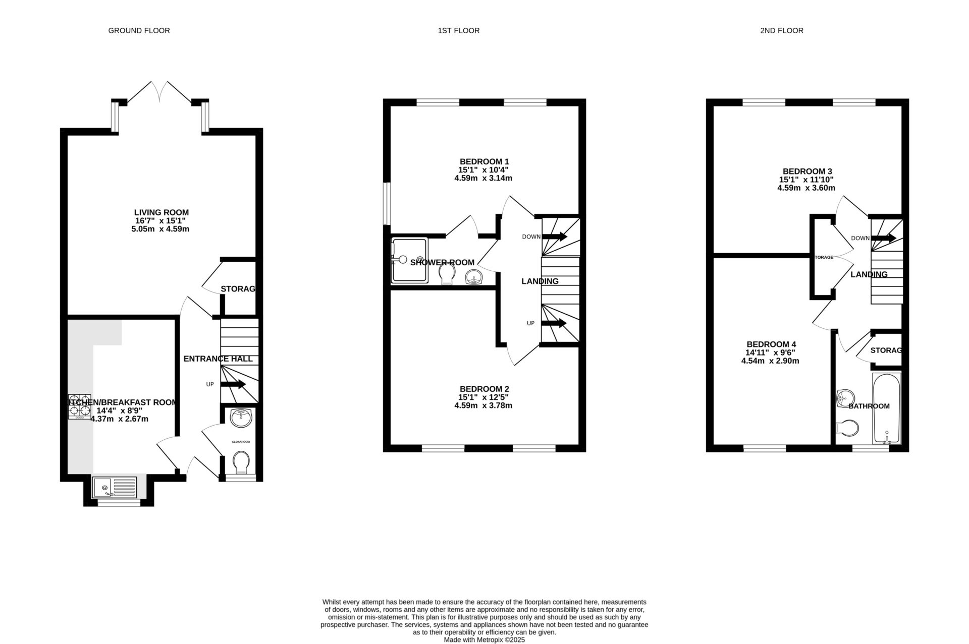
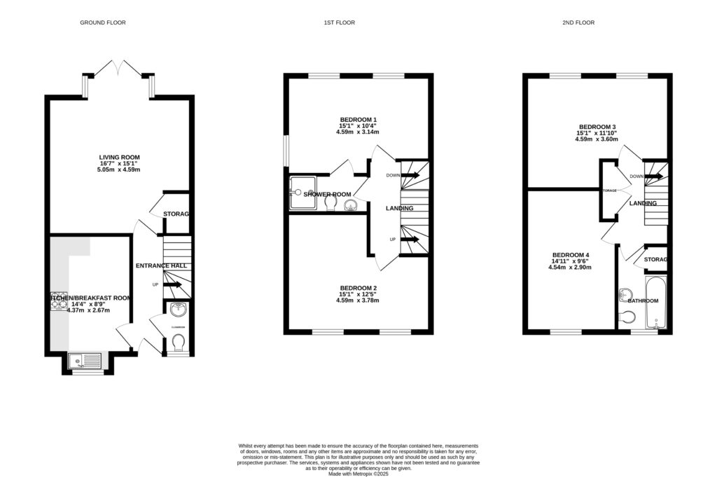
Located in the ever popular Chapel Gate development, this four double bedroom property is ideally positioned right by the town centre. Presented in impeccable decorative order throughout, the home still benefits from the remaining three years of the NHBC guarantee, meaning the new owners won’t have to worry about any work for quite some time. The property boasts an excellent layout, with a generous amount of internal space spread over three floors.
The spacious kitchen/breakfast room is situated at the front of the ground floor. Spanning the entire rear of the house is a spacious, open plan living area, perfect for entertaining as well as everyday family life. With the added benefit of a bay window that increases floor space, along with French doors providing direct access to the rear garden, this room truly serves as the heart of the home.
On the first floor, there are two double bedrooms with a Jack and Jill arrangement, sharing a modern shower room. The main bedroom also features a generous amount of storage. On the top floor, there are two further double bedrooms with a contemporary shower room between them. Both rooms benefit from built-in wardrobes and offer an impressive amount of space.
Property Summary
Four Double Bedrooms
Two Bathrooms
Modern Development Close to Town
Driveway Parking
Downstairs Cloakroom
Private Rear Garden
Spacious Living Room
EPC: B (85)
Council Tax Band: D
FIND OUT HOW MUCH YOU CAN BORROW
Stamp duty calculator
Mortgage calculator

















