4 BEDROOM Detached House
£625,000
Guide Price
Knoll Road, Fleet, Hampshire, GU51
Freehold
- 4 bed
- 1 bath
- 2 receptions
Full description
A FOUR BEDROOM DETACHED FAMILY HOME, Offered to the market for the first time since new and with No Onward Chain.
SOLD PRIOR TO MARKETING
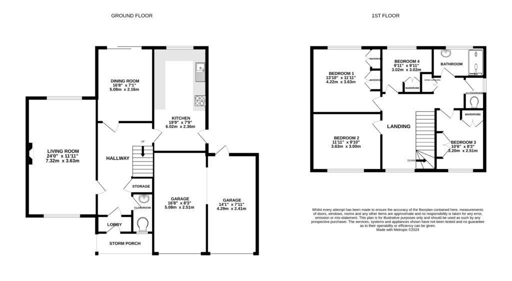
Offered to the market for the first time since new and with no onward chain, is this extended four bedroom detached family home situated within Fleet’s sough after “Blue Triangle” area and within walking distance of the Town Centre and Mainline Railway station. The accommodation comprises: Covered entrance porch, a lobby, hallway and cloakroom, living room, extended dining room, extended kitchen and a double garage to the ground floor. Whilst the first floor offers four well proportioned bedrooms along with a further cloakroom and a shower room. Viewings are highly advised and strictly by appointment only.
Property Summary
Four Bedrooms
Detached Family Home
No Onward Chain
Blue Triangle Location
Double Garage
Viewing Advised
Requires Modernisation
EPC: D (65)
Council Tax Band: F
FIND OUT HOW MUCH YOU CAN BORROW
Stamp duty calculator
Mortgage calculator

















