4 BEDROOM Land
£500,000
Asking Price
Monk Sherborne Road, Sherborne St. John, Basingstoke, Hampshire, RG24
Freehold
- 4 bed
- 3 bath
- 1 receptions
Full description
Build Your Dream Home
** STRICTLY BY APPOINTMEMT ONLY**
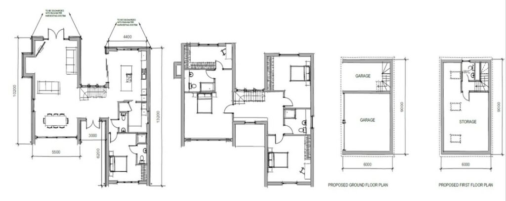
Looking to build your own home, then stop looking. This is a single building plot with planning approved for a four bedroom, 2,370sq. ft family home along with a three bay garage with a room above. Basingstoke Planning Ref; 24/01559/RES. Situated on the edge of the village and only a ten minute drive from Basingstoke town centre.
Once completed the property will benefit from four bedrooms, of which one will have en suite shower room, a family bathroom, large kitchen, cloakroom, utility room open plan lounge/dining room.
Sherborne St John has a local store, church, public house and is well thought of for schooling. Whilst only a few minutes from Basingstoke the village is surrounded by countryside, some owned by The National Trust. Basingstoke has excellent shopping and recreational facilities from an ice rink, indoor sky diving and museums to the shops, bars and restaurants of Festival Place. Road and rail communications are excellent: M3 motorway (J6 & 7) and frequent main line railway service to London (Waterloo from 45 minutes).
Please note: Photos, CGI imagery, and videos are indicative of the development and may not depict the exact property.
Disclaimer: The floorplan and measurements provided are for illustrative purposes only and should not be relied upon for accuracy.
Property Summary
Four Bedrooms
Building Project
Two Ensuites
Utility Room
Open Plan Living
Double Garage
Private Garden
Village Location
FIND OUT HOW MUCH YOU CAN BORROW
Stamp duty calculator
Mortgage calculator



