4 BEDROOM Semi-Detached House
£435,000
Asking Price
Tay Close, Farnborough, Hampshire, GU14
Freehold
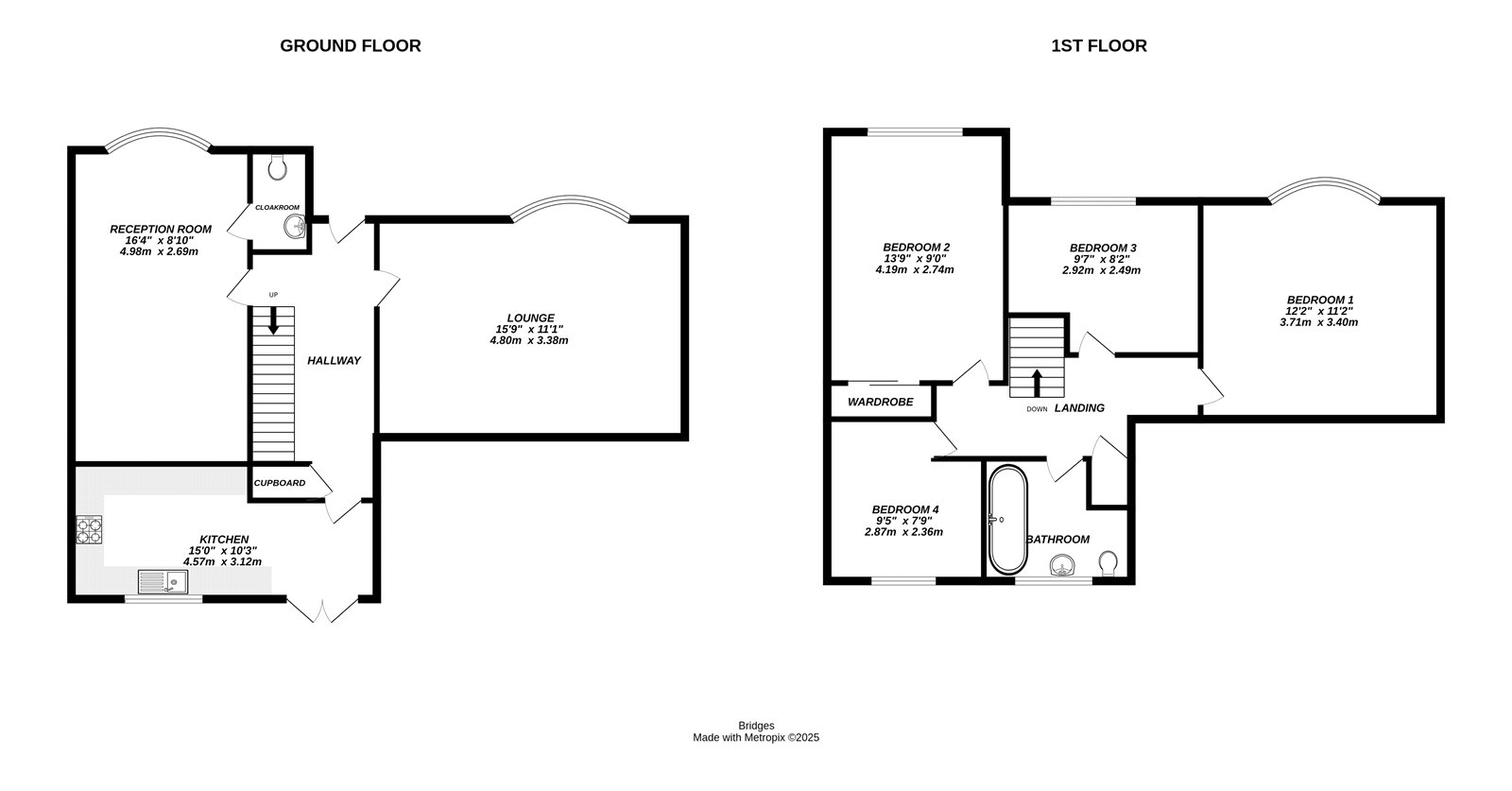
- 4 bed
- 1 bath
- 2 receptions
Full description
ANNEXE POTENTIAL Close to Local Schools and Areas of Greenery
Set in a quiet cul-de-sac in the heart of Farnborough, this four bedroom semi-detached home has spacious rooms throughout which is perfect for any growing family
On the ground floor there are two huge reception rooms either side of the hallway, meaning everyone has their own space and it’s a great space for day to day living as well as entertaining. Supporting this is a kitchen diner which is 15 feet in width and sits at the rear of the home. This is the hub of the household also and provides direct access to the rear garden.
Upstairs, all four bedrooms can fit a double bed in them and they are perfectly supported by a modern shower room. The surrounding neighbourhood is very well regarded, with schools, parks and local shops within easy reach.
This home offers a great opportunity to create your own style as it may require some decoration internally, but with the space and size on offer this really is an exciting proposition ready for a new family to move in.
Property Summary
Four Spacious Bedrooms
Two Reception Rooms
Good Sized Kitchen/Diner
Driveway Parking
Private, Low Maintenance Rear Garden
Close to Schools and Shops
Future Annex Potential
EPC: D (60)
Council Tax Band: C
FIND OUT HOW MUCH YOU CAN BORROW
Stamp duty calculator
Mortgage calculator










