4 BEDROOM Semi-Detached House
£435,000
Asking Price
Waterloo Road, Aldershot, Hampshire, GU12
Freehold
- 4 bed
- 2 bath
- 2 receptions
Full description
HOT NEW LISTING – A Cherished Family Home in Aldershot”s Most Sought After Location Offered for the First Time in Over 50 Years.
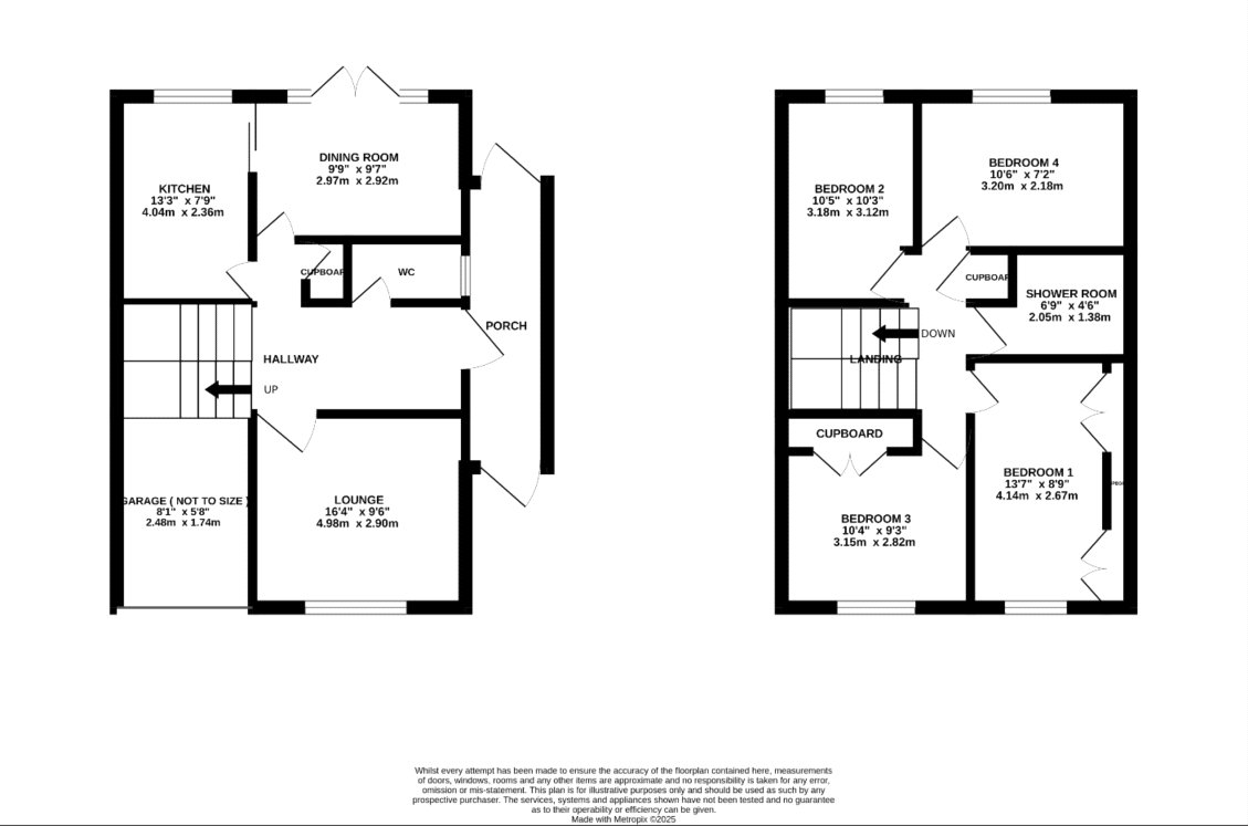
Brought to the market for the first time since it was built over fifty years ago, this well-presented semi-detached family home is positioned in one of Aldershot”s most sought after locations. Set over two floors, the internal accommodation is offered in good order throughout. The property benefits from four double bedrooms, two reception rooms, a garage, and an additional room featuring a downstairs cloakroom. The ground floor boasts a welcoming entrance hall leading to either the main lounge or a fitted kitchen, with a separate dining room beyond. Upstairs offers a principal bedroom, three further bedrooms, and a family bathroom.
This home provides versatile family living with a contemporary feel, having undergone numerous improvements by the current owners. Outside, the property enjoys a secluded, established garden with various fruit trees, driveway parking, and a garage. Located just 0.5 miles from Aldershot train station with direct links to London Waterloo it is also within walking distance of popular schools and the Manor Park Conservation Area.
Property Summary
Four Bedroom Family Home
Versatile Family Living Options
Driveway Parking and a Garage
Idyllic Established Garden
Fitted Kitchen
Must Be Seen to Be Appreciated
Downstairs Cloakroom
EPC: D (60)
Council Tax Band: D
FIND OUT HOW MUCH YOU CAN BORROW
Stamp duty calculator
Mortgage calculator
















