5 BEDROOM Detached House
£700,000
Guide Price
Harvard Road, Sandhurst, Berkshire, GU47
Freehold
- 5 bed
- 4 bath
- 2 receptions
Full description
Spacious, Stylish and Perfectly Positioned for Modern Family Life
Located in a desirable and peaceful setting close to the scenic walks of Claremont Woods, this beautifully presented five bedroom detached family home offers a superb combination of space, style, and modern convenience, perfect for contemporary family living.
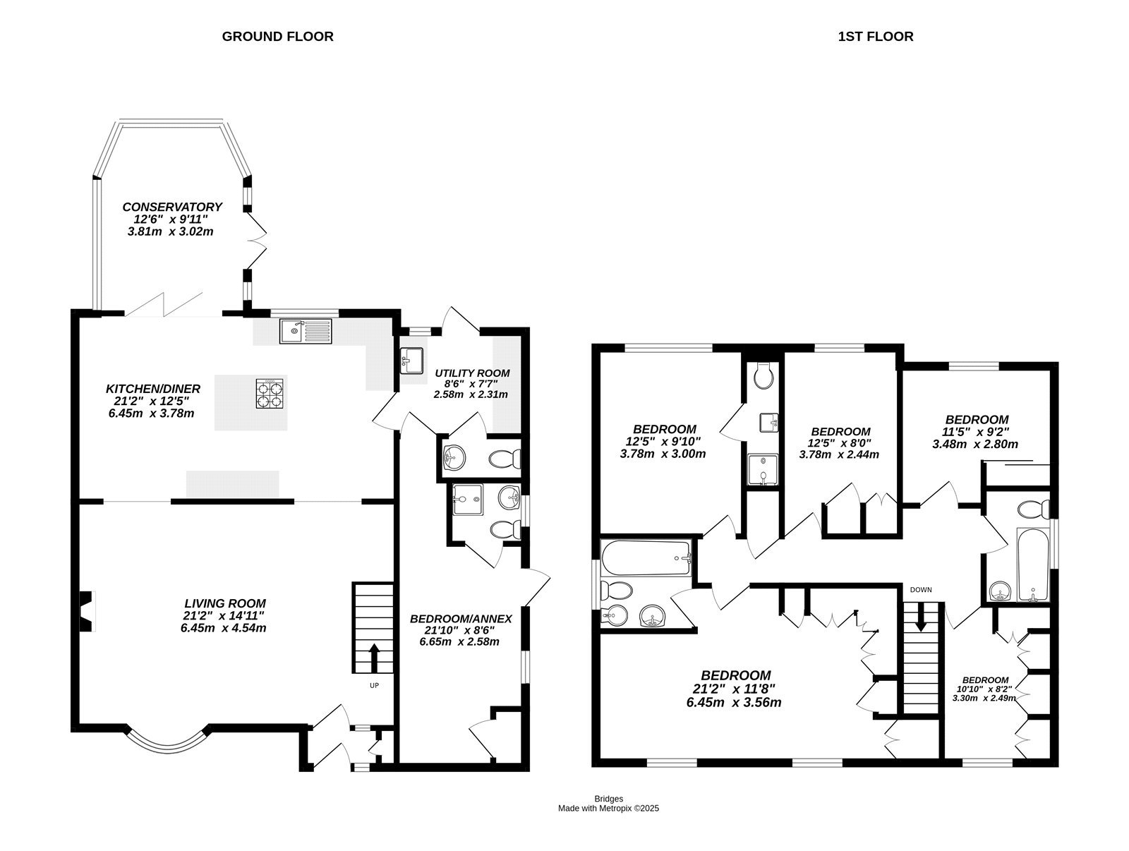
The heart of the home is a bright and spacious open plan living area, featuring a modern kitchen/breakfast room that flows effortlessly into the dining and family spaces, ideal for entertaining or everyday life. A conservatory to the rear adds an extra dimension of light filled living space, opening out onto the landscaped garden.
Designed with flexibility in mind, the ground floor includes a guest bedroom with an adjoining shower room, offering ideal accommodation for visitors or extended family. There is also a cloakroom and a separate utility room, adding practicality to this thoughtfully laid out home.
Upstairs, you?ll find four further well proportioned bedrooms, complemented by two modern shower rooms and a stylish family bathroom, ensuring comfort and convenience for the whole household.
Outside, the low maintenance landscaped rear garden provides a peaceful and private outdoor space perfect for relaxation or hosting. To the front, a generous driveway offers parking for up to five cars.
Ideally situated, the property is close to local shops, amenities, and excellent motorway links, making it a superb choice for families seeking a balance of tranquil surroundings and everyday convenience.
Property Summary
Five Bedrooms
Open Plan Modern Kitchen and Lounge
Conservatory
Beautifully Landscaped Rear Garden
Close to Local Shops, Amenities and Motorway Links
Guest Room on the Ground Floor
Clock Room and Utility Room
EPC: C (73)
Council Tax Band: F
FIND OUT HOW MUCH YOU CAN BORROW
Stamp duty calculator
Mortgage calculator



















