5 BEDROOM Detached House
£600,000
Guide Price
Hawk Close, Basingstoke, Hampshire, RG22
Freehold
- 5 bed
- 2 bath
- 3 receptions
Full description
DRIVEWAY PARKING FOR SIX CARS. Cul-de-Sac Location in a Great Area
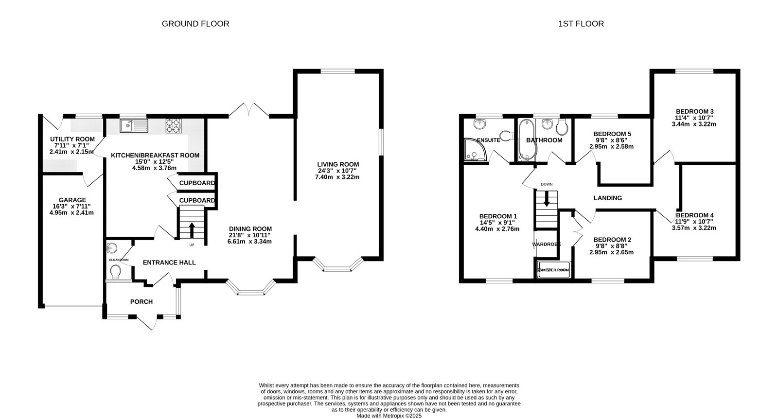
Located in a quiet cul-de-sac in the highly desirable area of Kempshott, this beautifully maintained link-detached family home offers space, style, and comfort throughout. Boasting five generous bedrooms, two en suites, a modern family bathroom, and two spacious reception rooms, this property also features a private garden that backs onto a spacious green and ample driveway parking that?s sure to be the envy of your neighbours. This home truly ticks all the boxes, and we can’t wait to show you around.
Nestled at the end of the cul-de-sac, the property benefits from a historic two storey side extension, which has transformed it into a spacious and versatile family home. The sunny, beautifully landscaped back garden and the generous side plot further enhance its appeal.
Bedroom one includes an en suite, while bedroom two has access to a walk-in shower room. The modern family bathroom serves the remaining bedrooms. Four of the bedrooms are spacious doubles, with the fifth being a well proportioned single. Both reception rooms feature bay windows, and one enjoys a dual aspect, flooding the space with natural light. The kitchen is modern and bright, complete with a unique walk-in pantry cupboard and a separate utility room tucked behind the garage.
Property Summary
Five Bedrooms
Ample Driveway Parking
Downstairs Cloakroom
En Suite to Bedroom One
Open Plan Reception Rooms
Close to Great Schools
Separate Utility Room
EPC: C (71)
Council Tax Band: E
FIND OUT HOW MUCH YOU CAN BORROW
Stamp duty calculator
Mortgage calculator




















