3 BEDROOM Terraced House
£330,000
Guide Price
Ash Road, Aldershot, GU12
Freehold
- 3 bed
Full description
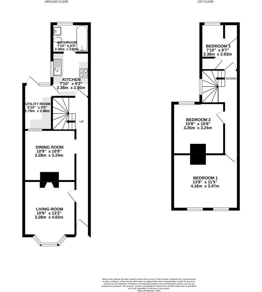
A period property which has been the subject of many improvements by the current owner and can be seen in abundance throughout.
The property is situated in a well regarded area of Aldershot, close to local amenities, well regarded schools for children of all ages and a mainline train station with direct links to London. Upon entering the property you are welcomed by a spacious hallway leading to a lounge with superb features, a separate dining room, which then leads to the kitchen and a newly fitted family bathroom. To the first floor is a principal bedroom with dual aspect windows, leading to two further bedrooms. The property further benefits from an enclosed rear garden and parking for two vehicles.
Bridges are delighted to offer this fabulous family home to the market and highly recommend viewing.
FIND OUT HOW MUCH YOU CAN BORROW
Stamp duty calculator
Mortgage calculator

















