3 BEDROOM Other
£250,000
Asking Price
Mytchett Farm Park, Mytchett, Camberley, GU16
- 3 bed
- 2 bath
- 1 receptions
Full description
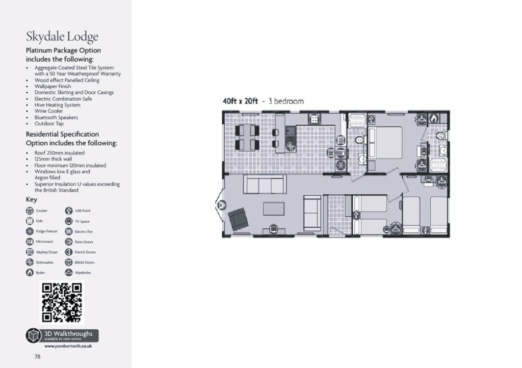
Tucked away within the popular Mytchett Farm Park, which caters exclusively for the over-45s, is this brand new, spacious three-bedroom park home (40ft x 20ft). Designed to the highly regarded specification, the home offers stylish, modern living, gas radiator heating, double glazing and modern fitted family bathroom. The kitchen provides excellent storage with ample cupboards. Whilst measurements are to be confirmed, the lounge/diner is approximately 10.5ft × 22.7ft, kitchen is approximately 9.4ft × 8.6ft, and principal bedroom is approximately 9.8ft × 12.6ft which includes a dressing area and an en suite bathroom. Delivering affordable living in a welcoming community setting, this property is a fantastic choice for buyers seeking comfort and convenience.
NO STAMP DUTY OR SOLICITOR FEES
Property Summary
Three Bedroom Park Home
Popular Mytchett Farm Park
Exclusively for the Over 45s
New Driveway for several vehicles and Lawn
Gas Central Heating and Double Glazing
1 Year Free Pitch Fee
10 Year Gold Shield Warranty
EPC: G (4)
Council Tax Band: A
FIND OUT HOW MUCH YOU CAN BORROW
Stamp duty calculator
Mortgage calculator






