1 BEDROOM Flat / Apartment
£235,000
Asking Price
Deepcut, Surrey, GU16
Leasehold
Apartment Department
- 1 bed
- 1 bath
- 1 receptions
Full description
TOP FLOOR ELEGANT ONE BEDROOM APARTMENT.
The Officers Park Collection.
Historic elegance meets modern living.
Nestled in the heart of Deepcut, The Officers Park Collection is a truly distinctive residential development offering 33 beautifully appointed one and two bedroom apartments. Set within over three acres of private, landscaped grounds, the development is located in the magnificent former headquarters of the Princess Royal Barracks.
Originally built in 1937, the historic Officers` Mess once formed the heart of military training and the Royal Logistic Corps. Now, expertly restored by Bourne Homes Ltd, the building retains its striking revivalist architecture, characterised by grand proportions and finely detailed façades, while being thoughtfully transformed for modern living.
This exceptional development honours its storied past by preserving many original features, maintaining its unique charm and architectural significance. Inside, each apartment has been meticulously designed with contemporary living in mind, featuring open-plan layouts, bright and airy interiors, and stunning views across manicured grounds.
Many homes benefit from private outdoor spaces such as gardens or terraces, with one apartment boasting its own balcony. Selected plots include garages, and every apartment comes equipped with an EV charging point, a testament to Bourne Homes` commitment to sustainability and future focused living.
Located within the emerging Mindenhurst Village, residents enjoy a vibrant and growing community, surrounded by mature woodland, landscaped gardens, and a network of walking and cycling trails. With direct access to the Basingstoke Canal, Deepcut village, and a variety of local amenities, The Officers Park Collection offers a rare opportunity to experience the timeless beauty of historic architecture with all the comforts of a modern lifestyle.
Please note: Photos, CGI imagery, and videos are indicative of the development and may not depict the exact apartment.
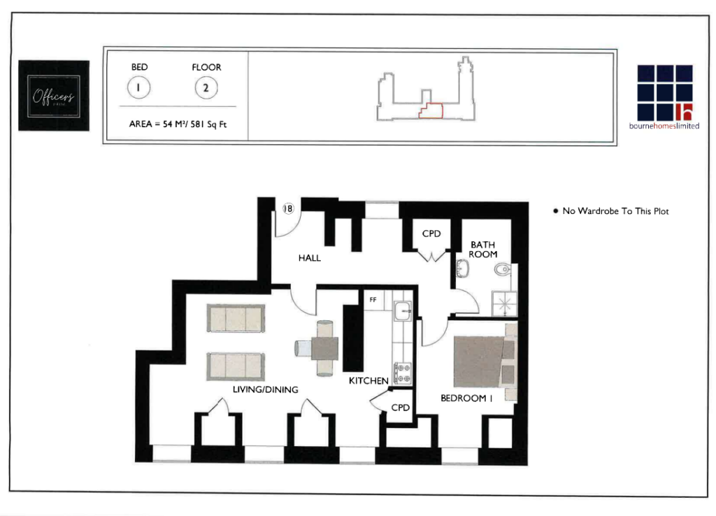
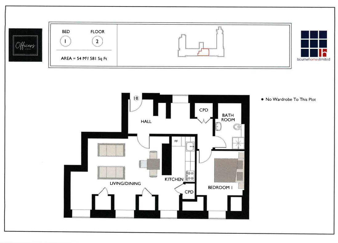
Disclaimer: The floorplan and measurements provided are for illustrative purposes only and should not be relied upon for accuracy.
Property Summary
One Double Bedroom
Contemporary Kitchen with Integrated Appliances
Elegant Bathroom Suite with Quality Fittings and Modern Tiling
Efficient Heating – Gas Combi or Electric (Plot Dependent)
Superfast Full Fibre Broadband Connectivity
EV Charging to All Units
Garage to Selected Plots - Parking
EPC: C 72
Over Three Acres of Landscaped Grounds
10-year Build Zone Warranty
Council Tax: TBC
FIND OUT HOW MUCH YOU CAN BORROW
Stamp duty calculator
Mortgage calculator












